
Indigo Grove
$774k




View All57 Photos

Indigo Grove
57
$774k
3043 Robeson Trace in Indigo Grove, Johns Island, SC
3043 Robeson Trace, Johns Island, SC 29455
$773,990
$773,990
Does this home feel like a match?
Let us know — it helps us curate better suggestions for you.
Property Highlights
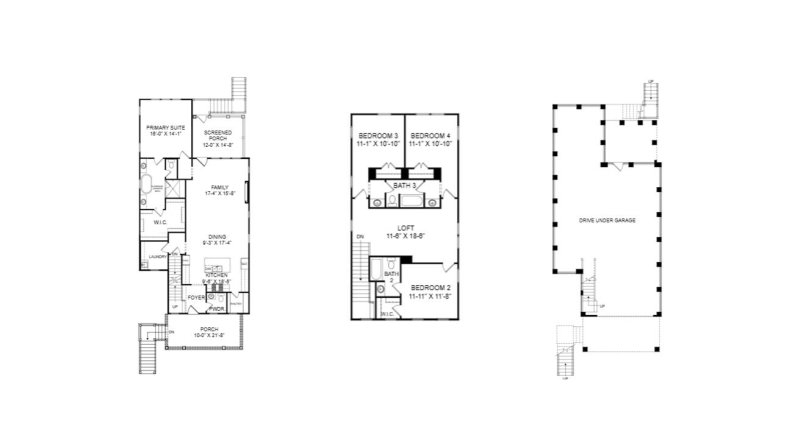
Bedrooms
4
Bathrooms
3
Property Details
Welcome to Indigo Grove! Johns Islands' most convenient location. This home is under constrcution for a Nov/Dec delivery.
Time on Site
3 months ago
Property Type
Residential
Year Built
2025
Lot Size
5,662 SqFt
Price/Sq.Ft.
N/A
HOA Fees
Request Info from Buyer's AgentListing Information
- LocationJohns Island
- MLS #CHS20ae7c46ef18f31d96638faf89888906
- Last UpdatedOctober 22, 2025
Property Details
Bedrooms:
4
Bathrooms:
3
Total Building Area:
2,525 SqFt
Property Sub-Type:
SingleFamilyResidence
Garage:
Yes
School Information
Elementary:
Angel Oak ES 4K-1/Johns Island ES 2-5
Middle:
Haut Gap
High:
St. Johns
School assignments may change. Contact the school district to confirm.
Additional Information
Region
0
C
1
H
2
S
Lot And Land
Lot Features
Wooded
Lot Size Area
0.13
Lot Size Acres
0.13
Lot Size Units
Acres
Agent Contacts
List Agent Mls Id
12850
List Office Name
SM SOUTH CAROLINA BROKERAGE LLC
List Office Mls Id
9689
List Agent Full Name
Suzanne Scholz
Green Features
Green Building Verification Type
HERS Index Score
Community & H O A
Community Features
Pool, Walk/Jog Trails
Room Dimensions
Bathrooms Half
1
Room Master Bedroom Level
Lower
Property Details
Directions
For Gps- Put 3030 Robeson Trace Johns Island, Sc 29455
M L S Area Major
23 - Johns Island
Tax Map Number
3450000546
County Or Parish
Charleston
Property Sub Type
Single Family Detached
Architectural Style
Traditional
Construction Materials
Cement Siding
Exterior Features
Roof
Architectural, Asphalt, Metal
Other Structures
No
Parking Features
2 Car Garage, 3 Car Garage, 4 Car Garage, Garage Door Opener
Exterior Features
Lawn Irrigation, Rain Gutters
Patio And Porch Features
Patio, Front Porch, Porch - Full Front, Screened
Interior Features
Cooling
Central Air
Heating
Central, Natural Gas
Flooring
Carpet, Ceramic Tile, Laminate
Room Type
Eat-In-Kitchen, Foyer, Laundry, Living/Dining Combo, Loft, Pantry
Laundry Features
Laundry Room
Interior Features
Ceiling - Smooth, High Ceilings, Kitchen Island, Walk-In Closet(s), Eat-in Kitchen, Entrance Foyer, Living/Dining Combo, Loft, Pantry
Systems & Utilities
Sewer
Public Sewer
Water Source
Public
Financial Information
Listing Terms
Any, Conventional, VA Loan
Additional Information
Stories
3
Garage Y N
true
Carport Y N
false
Cooling Y N
true
Feed Types
- IDX
Heating Y N
true
Listing Id
25020496
Mls Status
Pending
Listing Key
20ae7c46ef18f31d96638faf89888906
Coordinates
- -80.03283
- 32.747487
Fireplace Y N
true
Parking Total
9
Carport Spaces
0
Covered Spaces
9
Home Warranty Y N
true
Standard Status
Pending
Fireplaces Total
1
Source System Key
20250725164218486400000000
Building Area Units
Square Feet
Foundation Details
- Raised
New Construction Y N
true
Property Attached Y N
false
Originating System Name
CHS Regional MLS
Special Listing Conditions
10 Yr Warranty
Showing & Documentation
Internet Address Display Y N
true
Internet Consumer Comment Y N
true
Internet Automated Valuation Display Y N
false
Listing Information
- LocationJohns Island
- MLS #CHS20ae7c46ef18f31d96638faf89888906
- Last UpdatedOctober 22, 2025
