





New Glenwood II in Irmo: Main Level Living, Optional Patio & Special Rates!
167 Locomotive Lot 21 Lane, Irmo, SC 29063
$279,900
$279,900
Does this home feel like a match?
Let us know — it helps us curate better suggestions for you.
Property Highlights
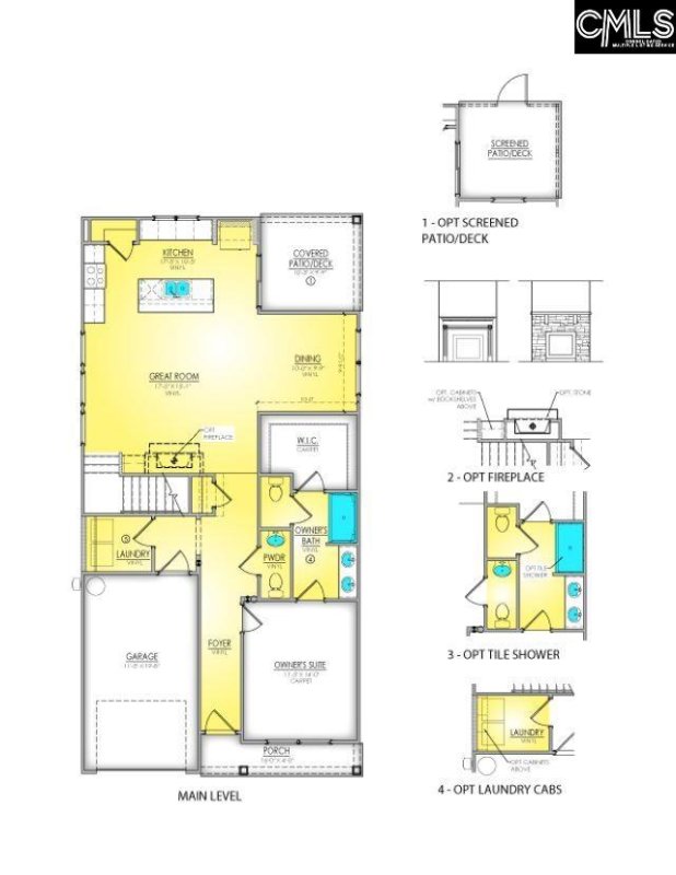
Bedrooms
3
Bathrooms
3
Living Area
1,793 SqFt
Property Details
Welcome to Bickley Station! Discover the Glenwood II, thoughtfully designed with 1,793 square feet of comfortable, low-maintenance living. With three bedrooms and two and a half bathrooms, this home provides just the right amount of space-perfect for smaller families who value quality over excess.
Time on Site
1 month ago
Property Type
Residential
Year Built
2025
Lot Size
5,227 SqFt
Price/Sq.Ft.
$156
HOA Fees
Request Info from Buyer's AgentProperty Details
School Information
Additional Information
Property Details
- Dishwasher
- Disposal
- Microwave Above Stove
- Tankless H20
Exterior Features
Interior Features
- Electric
- Heated Space
- Ceiling Fan
- Floors- Luxury Vinyl Plank
- Free-Standing
- Self Clean
- Smooth Surface
- Island
- Pantry
- Counter Tops- Granite
- Cabinets- Painted
- Floors- Luxury Vinyl Plank
- Bath- Shared
- Closet- Walk In
- Tub- Shower
- Floors - Carpet
- Floors- Luxury Vinyl Plank
- Bath- Shared
- Closet- Walk In
- Tub- Shower
- Floors - Carpet
- Floors- Luxury Vinyl Plank
- Double Vanity
- Bath- Private
- Separate Shower
- Closet- Walk In
- Ceiling Fan
- Separate Water Closet
- Floors - Carpet
- Floors- Luxury Vinyl Plank
Contact Information
Systems & Utilities
- Gas 1St Lvl
- Gas 2Nd Lvl
Location Information
Financial Information
- Front Yard Maintenance
- Green Areas
- Cash
- Conventional
- F H A
- V A
Additional Information
Details provided by Consolidated MLS and may not match the public record. Learn more. The information is being provided by Consolidated Multiple Listing Service, Inc. Information deemed reliable but not guaranteed. Information is provided for consumers' personal, non-commercial use, and may not be used for any purpose other than the identification of potential properties for purchase. © 2025 Consolidated Multiple Listing Service, Inc. All Rights Reserved.
