




Discover Your New Inman Oasis: 4 Bed, 2.5 Bath, Garage, and Loft
1711 Watersail Lane, Inman, SC 29349
$324,000
$324,000
Does this home feel like a match?
Let us know — it helps us curate better suggestions for you.
Property Highlights
Bedrooms
4
Bathrooms
2
Living Area
2,174 SqFt
Property Details
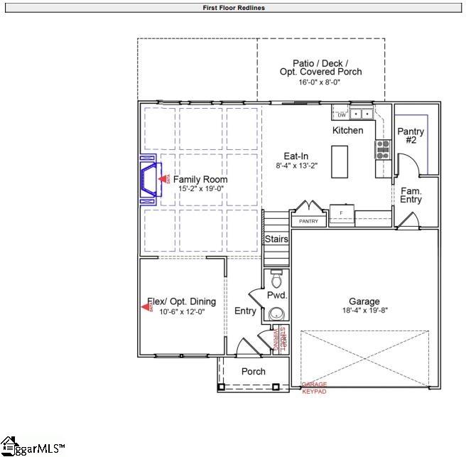
This Cooper is a beautiful four bedroom, two and a half bathroom, two car garage home with an open plan featuring luxury vinyl flooring on the main level living areas. As you walk into the home you will notice the large dining room opening up to the family room then kitchen. This space is perfect for entertaining friends and family or hosting those special holidays or get-togethers!
Time on Site
6 months ago
Property Type
Residential
Year Built
2025
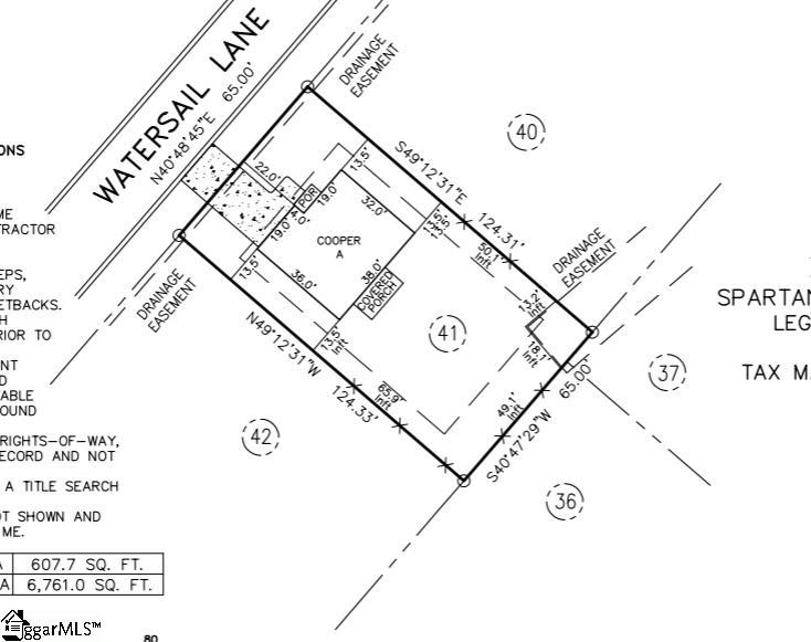
Lot Size
8,276 SqFt
Price/Sq.Ft.
$149
HOA Fees
Request Info from Buyer's AgentProperty Details
School Information
Additional Information
Region
Agent Contacts
- Greenville: (864) 757-4000
- Simpsonville: (864) 881-2800
Community & H O A
Room Dimensions
Property Details
Exterior Features
- Patio
- Porch-Front
- Tilt Out Windows
Interior Features
- 2nd Floor
- Walk-in
- Carpet
- Luxury Vinyl Tile/Plank
- Dishwasher
- Disposal
- Stand Alone Rng-Electric
- Microwave-Built In
- Attic
- Garage
- Laundry
- Loft
- Attic Stairs Disappearing
- Ceiling 9ft+
- Ceiling Smooth
- Open Floor Plan
- Smoke Detector
- Walk In Closet
- Countertops – Quartz
- Pantry – Walk In
- Radon System
Systems & Utilities
Showing & Documentation
- Warranty Furnished
- House Plans
- Pre-approve/Proof of Fund
- Specified Sales Contract
The information is being provided by Greater Greenville MLS. Information deemed reliable but not guaranteed. Information is provided for consumers' personal, non-commercial use, and may not be used for any purpose other than the identification of potential properties for purchase. Copyright 2025 Greater Greenville MLS. All Rights Reserved.
