

12146 Lansbury Drive in Richmond Hill, Inman, SC
12146 Lansbury Drive, Inman, SC 29349
$263,000
$263,000
Does this home feel like a match?
Let us know — it helps us curate better suggestions for you.
Property Highlights
Bedrooms
3
Bathrooms
2
Living Area
1,548 SqFt
Property Details
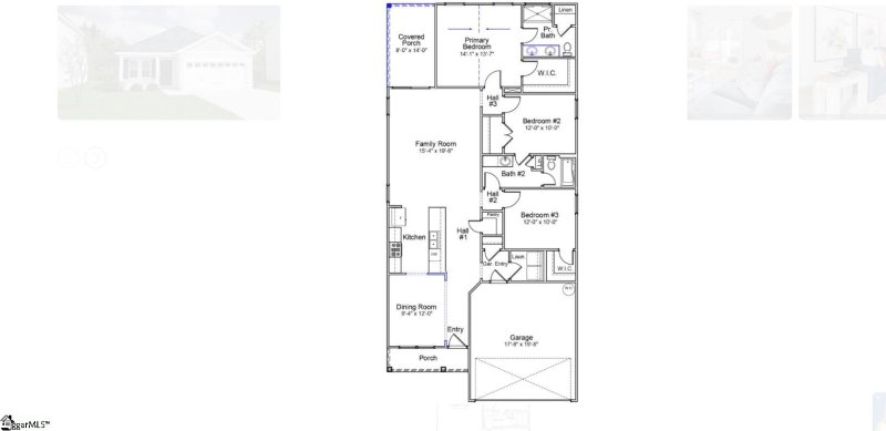
The Brunswick is a thoughtfully designed three-bedroom, two-bathroom home that perfectly blends charm, efficiency, and modern comfort. Its single-story layout features an open-concept kitchen, dining, and living area - ideal for gathering with loved ones. Stylish and durable luxury vinyl plank flooring flows throughout the main living spaces, combining beauty with easy maintenance.
Time on Site
4 days ago
Property Type
Residential
Year Built
2025
Lot Size
5,227 SqFt
Price/Sq.Ft.
$170
HOA Fees
Request Info from Buyer's AgentProperty Details
School Information
Loading map...
Additional Information
Agent Contacts
- Greenville: (864) 757-4000
- Simpsonville: (864) 881-2800
Community & H O A
Room Dimensions
Property Details
Exterior Features
- Paved
- Paved Concrete
- Patio
- Porch-Front
- Some Storm Doors
- Some Storm Windows
- Tilt Out Windows
- Vinyl/Aluminum Trim
- Porch-Covered Back
Interior Features
- 1st Floor
- Walk-in
- Dryer – Electric Hookup
- Washer Connection
- Carpet
- Luxury Vinyl Tile/Plank
- Dishwasher
- Disposal
- Stand Alone Range-Gas
- Oven-Gas
- Microwave-Built In
- Attic
- Garage
- Attic Stairs Disappearing
- Ceiling 9ft+
- Ceiling Fan
- Ceiling Smooth
- Open Floor Plan
- Smoke Detector
- Walk In Closet
- Countertops – Quartz
- Pantry – Walk In
Systems & Utilities
- Gas
- Tankless
- Natural Gas
- Heat Pump
Showing & Documentation
- House Plans
- Restric.Cov/By-Laws
- List Agent Present
- Show Anytime
- Lockbox-CBS Code Required
- No Appointment Required
- Under Construction
- Copy Earnest Money Check
- Pre-approve/Proof of Fund
- Specified Sales Contract
The information is being provided by Greater Greenville MLS. Information deemed reliable but not guaranteed. Information is provided for consumers' personal, non-commercial use, and may not be used for any purpose other than the identification of potential properties for purchase. Copyright 2025 Greater Greenville MLS. All Rights Reserved.
