





8647 Miles Gap Road in The Ridge at Sugar Creek, Indian Land, SC
8647 Miles Gap Road, Indian Land, SC 29707
$464,990
$464,990
Property Highlights
Bedrooms
3
Bathrooms
2
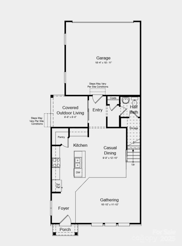
Living Area
1,846 SqFt
Property Details
New Construction - November Completion! Built by America's Most Trusted Homebuilder. Welcome to the Avon at 8647 Miles Gap Road in Ridge at Sugar Creek!
Time on Site
2 months ago
Property Type
Residential
Year Built
2025
Lot Size
N/A
Price/Sq.Ft.
$252
HOA Fees
Request Info from Buyer's AgentListing Information
- LocationIndian Land
- MLS #CAR284670853
- Last UpdatedOctober 6, 2025
Property Details
School Information
Additional Information
Utilities
- Public Sewer
- Cable Available
- Natural Gas
- Other - See Remarks
- City
Lot And Land
- None
- None
Agent Contacts
- Palmetto Park Realty Team Fort Mill: 803.548.6123
Interior Details
- Natural Gas
- Zoned
- Carpet
- Laminate
- Tile
- Upper Level
Exterior Features
- Shingle
- Brick Partial
- Fiber Cement
- Metal
Parking And Garage
- Driveway
- Attached Garage
- Garage Door Opener
- Garage Faces Rear
Financial Information
Basement And Foundation
- Slab
Zoning And Restrictions
Square Footage And Levels
- Two
Additional C A R Information

IDX information is provided exclusively for consumers' personal, non-commercial use only; it may not be used for any purpose other than to identify prospective properties consumers may be interested in purchasing. Data is deemed reliable but is not guaranteed accurate by the MLS GRID. Use of this site may be subject to an end user license agreement. Based on information submitted to the MLS GRID as of Mon, Oct 6, 2025. All data is obtained from various sources and may not have been verified by broker or MLS GRID. Supplied Open House Information is subject to change without notice. All information should be independently reviewed and verified for accuracy. Properties may or may not be listed by the office/agent presenting the information. Some IDX listings have been excluded from this website. Any use by you of search facilities of data on the site, other than by a consumer looking to purchase real estate, is prohibited. DMCA Notice: Palmetto Park Realty respects the intellectual property rights of others. If you believe that your work has been copied in a way that constitutes copyright infringement, please provide our designated agent with written notice containing the following information: (1) identification of the copyrighted work claimed to have been infringed; (2) identification of the material that is claimed to be infringing; (3) your contact information; (4) a statement that you have a good faith belief that use of the material is not authorized; and (5) a statement that the information in the notification is accurate and you are authorized to act on behalf of the copyright owner. Please send DMCA notices to: hello@palmettopark.com
Listing Information
- LocationIndian Land
- MLS #CAR284670853
- Last UpdatedOctober 6, 2025