



322 Tartan Road in Laurinton Farms, Hopkins, SC
322 Tartan Road, Hopkins, SC 29061
$243,718
$243,718
Does this home feel like a match?
Let us know — it helps us curate better suggestions for you.
Property Highlights
Bedrooms
3
Bathrooms
3
Living Area
1,661 SqFt
Property Details
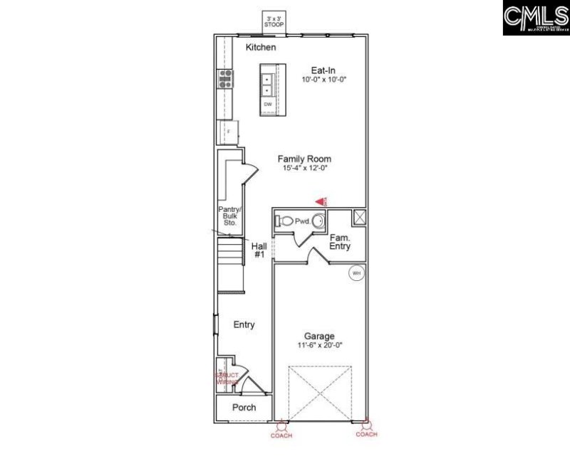
The Douglas floorplan is a two-story, three-bedroom, two-and-one-half-bathroom home that beautifully combines modern design with everyday comfort. Step through the front door into a bright, open-concept great room, eat-in area, and kitchen featuring stylish stone gray cabinets, elegant Dallas White countertops, and a sleek electric stove—perfect for both cooking and entertaining. A convenient powder room is tucked away just off the garage entry.
Time on Site
1 week ago
Property Type
Residential
Year Built
2025
Lot Size
3,920 SqFt
Price/Sq.Ft.
$147
HOA Fees
Request Info from Buyer's AgentProperty Details
School Information
Additional Information
Property Details
Exterior Features
Interior Features
Contact Information
Systems & Utilities
Location Information
Details provided by Consolidated MLS and may not match the public record. Learn more. The information is being provided by Consolidated Multiple Listing Service, Inc. Information deemed reliable but not guaranteed. Information is provided for consumers' personal, non-commercial use, and may not be used for any purpose other than the identification of potential properties for purchase. © 2025 Consolidated Multiple Listing Service, Inc. All Rights Reserved.
