



312 Tartan Road in Laurinton Farms, Hopkins, SC
312 Tartan Road, Hopkins, SC 29061
$246,125
$246,125
Does this home feel like a match?
Let us know — it helps us curate better suggestions for you.
Property Highlights
Bedrooms
3
Bathrooms
2
Living Area
1,661 SqFt
Property Details
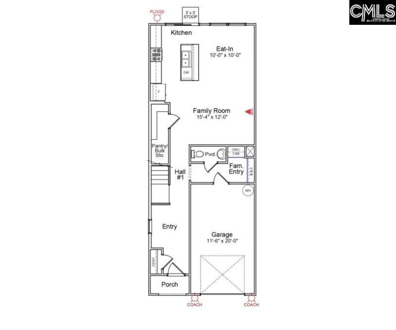
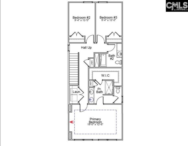
The Douglas plan is a two-story, three-bedroom, two-and-one-half bathroom home. The first floor features an open floor plan with a powder room, a kitchen island overlooking the great room, and stylish Burlap cabinets paired with Luna Pearl granite countertops. Upstairs, you’ll find the primary suite with two closets, including a spacious walk-in, and a bathroom featuring a 5-foot fiberglass shower, linen closet, and water closet.
Time on Site
1 week ago
Property Type
Residential
Year Built
2025
Lot Size
3,920 SqFt
Price/Sq.Ft.
$148
HOA Fees
Request Info from Buyer's AgentProperty Details
School Information
Additional Information
Property Details
Exterior Features
Interior Features
Contact Information
Systems & Utilities
Location Information
Details provided by Consolidated MLS and may not match the public record. Learn more. The information is being provided by Consolidated Multiple Listing Service, Inc. Information deemed reliable but not guaranteed. Information is provided for consumers' personal, non-commercial use, and may not be used for any purpose other than the identification of potential properties for purchase. © 2025 Consolidated Multiple Listing Service, Inc. All Rights Reserved.
