





191 Laurinton Farms Drive in Laurinton Farms, Hopkins, SC
191 Laurinton Farms Drive, Hopkins, SC 29061
$237,000
$237,000
Does this home feel like a match?
Let us know — it helps us curate better suggestions for you.
Property Highlights
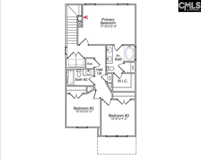
Bedrooms
3
Bathrooms
3
Living Area
1,476 SqFt
Property Details
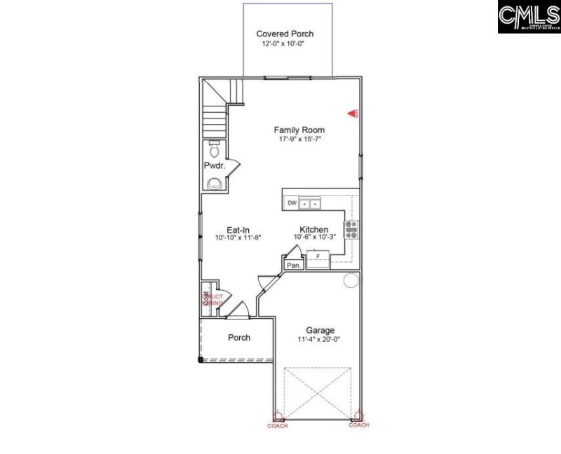
Close to Shaw Air Base. The Bartow! This three bedroom, two and one-half bathroom home has an open concept layout.
Time on Site
1 week ago
Property Type
Residential
Year Built
2025
Lot Size
4,791 SqFt
Price/Sq.Ft.
$161
HOA Fees
Request Info from Buyer's AgentProperty Details
School Information
Additional Information
Property Details
- Dishwasher
- Disposal
- Microwave Above Stove
- Tankless H20
- Gas Water Heater
Exterior Features
- Patio
- Sprinkler
- Front Porch - Covered
- Back Porch - Uncovered
Interior Features
- Free-Standing
- Gas
- Eat In
- Pantry
- Counter Tops- Granite
- Smoke Detector
- Attic Pull- Down Access
- Double Vanity
- Closet- Walk In
- Tub- Shower
Contact Information
Systems & Utilities
- Central
- Gas 1St Lvl
- Gas 2Nd Lvl
Location Information
Financial Information
- Common Area Maintenance
- Sidewalk Maintenance
- Street Light Maintenance
- Cash
- Conventional
- F H A
- V A
Details provided by Consolidated MLS and may not match the public record. Learn more. The information is being provided by Consolidated Multiple Listing Service, Inc. Information deemed reliable but not guaranteed. Information is provided for consumers' personal, non-commercial use, and may not be used for any purpose other than the identification of potential properties for purchase. © 2025 Consolidated Multiple Listing Service, Inc. All Rights Reserved.
