




$255,999
613 Sparano Loop
York, SC 29745
About This Property
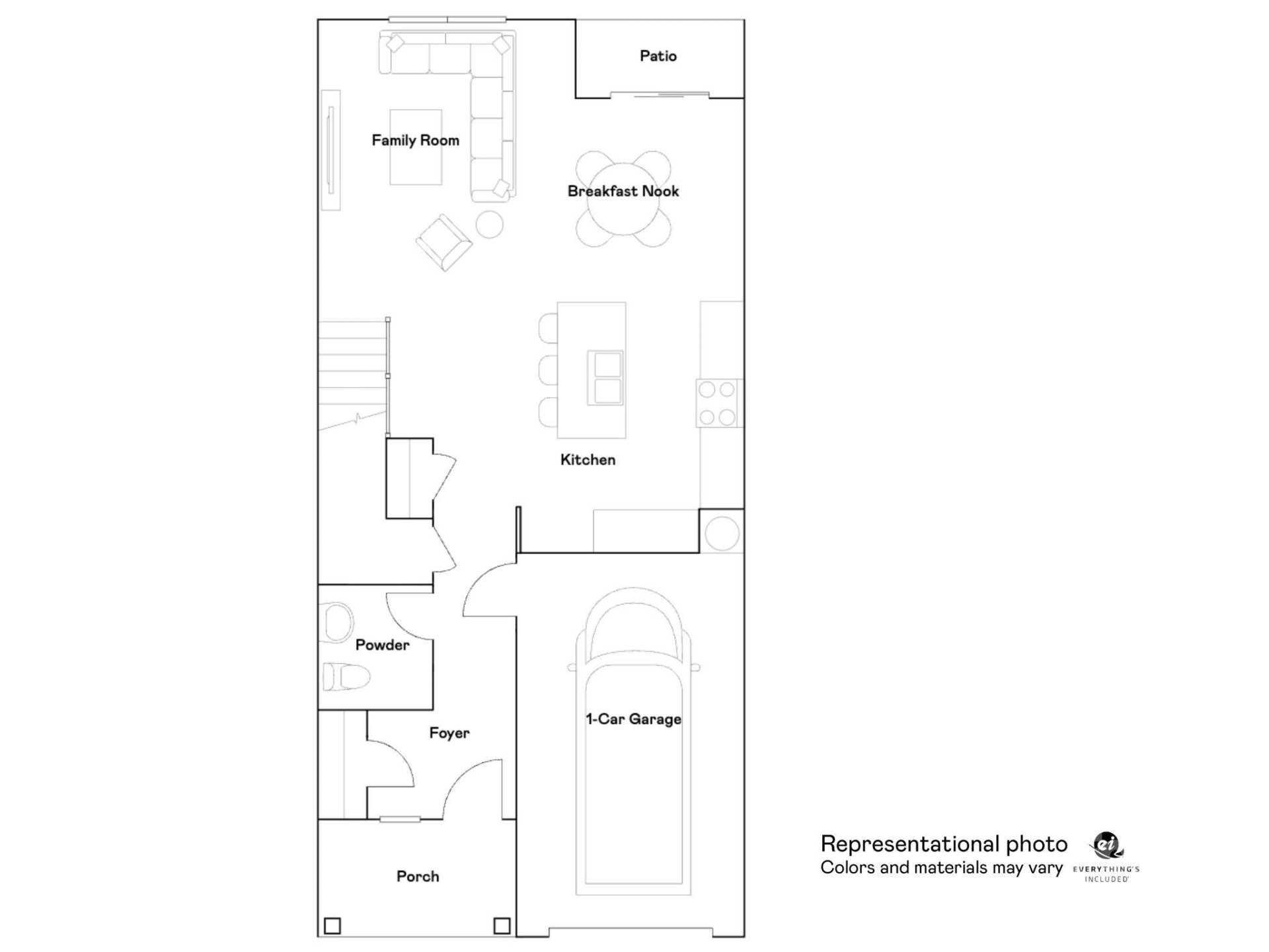
Past the foyer of this new two-story townhome is a convenient, open-plan layout shared among the main living spaces. Showcasing a fully equipped kitchen, a family room made for gatherings and an intimate breakfast nook, while nearby is a patio for outdoor moments. Ideally upstairs are all three bedrooms to provide excellent sleeping accommodations, including the serene primary suite with a private bathroom.
Plus, our signature Everything's Included program means you will get quartz or granite kitchen countertops, subway tile backsplash, ceramic tile, and luxury vinyl plank flooring on the first floor at no extra cost! Cannon Village is a master-planned community offering new single-family homes and townhomes to a great location in York, SC. Residents can enjoy future onsite amenities including a swimming pool, cabana, and park.
CAR MLS # 295596785
Quick Facts
Time on Site
1 month ago
Property Type
Residential
Year Built
2026
Price/Sq.Ft.
$154
Property Details
Schools
Features & Amenities
Features:
- Entrance Foyer
- Kitchen Island
- Open Floorplan
- Pantry
- Split Bedroom
- Walk-In Closet(s)
Location & Map
Map View
Loading map...
Additional Information
Utilities
- County Sewer
- Natural Gas
- County Water
Lot And Land
- Level
Agent Contacts
- Palmetto Park Realty Team Fort Mill: 803.548.6123
Interior Details
- Forced Air
- Natural Gas
- Zoned
- Carpet
- Vinyl
- Insulated Door(s)
- Laundry Room
- Upper Level
- Entrance Foyer
- Kitchen Island
- Open Floorplan
- Pantry
- Split Bedroom
- Walk-In Closet(s)
- Carbon Monoxide Detector(s)
Exterior Features
- Architectural Shingle
- Lawn Maintenance
- Fiber Cement
Parking And Garage
- Driveway
- Attached Garage
Financial Information
Basement And Foundation
- Slab
Zoning And Restrictions
Square Footage And Levels
- Two
Additional C A R Information
IDX information is provided exclusively for consumers' personal, non-commercial use only; it may not be used for any purpose other than to identify prospective properties consumers may be interested in purchasing. Data is deemed reliable but is not guaranteed accurate by the MLS GRID. Use of this site may be subject to an end user license agreement. Based on information submitted to the MLS GRID as of Mon, Mar 2, 2026. All data is obtained from various sources and may not have been verified by broker or MLS GRID. Supplied Open House Information is subject to change without notice. All information should be independently reviewed and verified for accuracy. Properties may or may not be listed by the office/agent presenting the information. Some IDX listings have been excluded from this website. Any use by you of search facilities of data on the site, other than by a consumer looking to purchase real estate, is prohibited. DMCA Notice: Palmetto Park Realty respects the intellectual property rights of others. If you believe that your work has been copied in a way that constitutes copyright infringement, please provide our designated agent with written notice containing the following information: (1) identification of the copyrighted work claimed to have been infringed; (2) identification of the material that is claimed to be infringing; (3) your contact information; (4) a statement that you have a good faith belief that use of the material is not authorized; and (5) a statement that the information in the notification is accurate and you are authorized to act on behalf of the copyright owner. Please send DMCA notices to: [email protected]


