

$419,428
1735 Silver Birch Road
York, SC 29745
About This Property
This Property Has Been Sold
This property sold 1 year ago and is no longer available for purchase.
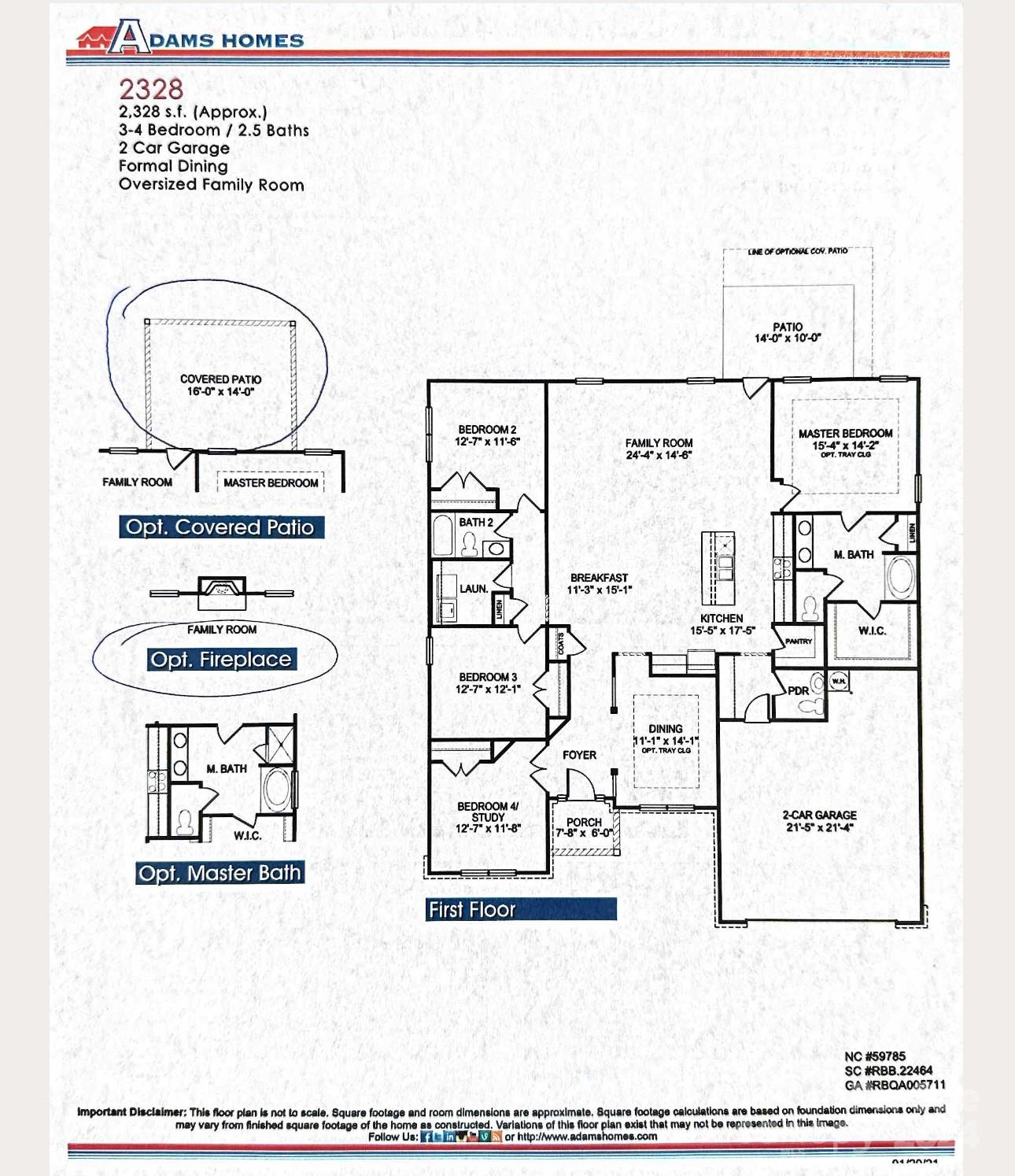
View active listings in Lauren Pines →Only $1000 down to write contract! This new constructed home is situated in the beautiful Lauren Pines subdivision in York on a 1 acre lot. This 2328 sf ranch is spacious & open with an incredible layout, great for entertaining.
A cook's dream kitchen & large island overlook the spacious family room and gas fireplace. 4th bedroom/study with double door entrance lets in lots of natural light. Included in this home are quartz countertops, tiled kitchen backsplash, stainless steel appliances, gas range, laminate wood flooring throughout the main areas, side load garage and primary bathroom with 5' tile shower.
Enjoy the tree-lined view from the 16 x 14 covered patio. Projected completion date September 2024. 5K towards rate buy- down and closing costs paid with use of preferred lender.
CAR MLS # 220373214
Quick Facts
Time on Site
2 years ago
Property Type
Residential
Year Built
2024
Price/Sq.Ft.
$180
Property Details
Schools
Features & Amenities
Location & Map
Map View
Loading map...
Additional Information
Utilities
- Septic Installed
- Well
Lot And Land
Agent Contacts
- Palmetto Park Realty Team Fort Mill: 803.548.6123
Interior Details
- Natural Gas
- None
- Laundry Room
- Family Room
Exterior Features
- Fiber Cement
Parking And Garage
- Driveway
Financial Information
Basement And Foundation
- Slab
Zoning And Restrictions
Square Footage And Levels
- One
Additional C A R Information
IDX information is provided exclusively for consumers' personal, non-commercial use only; it may not be used for any purpose other than to identify prospective properties consumers may be interested in purchasing. Data is deemed reliable but is not guaranteed accurate by the MLS GRID. Use of this site may be subject to an end user license agreement. Based on information submitted to the MLS GRID as of Wed, Oct 30, 2024. All data is obtained from various sources and may not have been verified by broker or MLS GRID. Supplied Open House Information is subject to change without notice. All information should be independently reviewed and verified for accuracy. Properties may or may not be listed by the office/agent presenting the information. Some IDX listings have been excluded from this website. Any use by you of search facilities of data on the site, other than by a consumer looking to purchase real estate, is prohibited. DMCA Notice: Palmetto Park Realty respects the intellectual property rights of others. If you believe that your work has been copied in a way that constitutes copyright infringement, please provide our designated agent with written notice containing the following information: (1) identification of the copyrighted work claimed to have been infringed; (2) identification of the material that is claimed to be infringing; (3) your contact information; (4) a statement that you have a good faith belief that use of the material is not authorized; and (5) a statement that the information in the notification is accurate and you are authorized to act on behalf of the copyright owner. Please send DMCA notices to: [email protected]
You Might Also Like...
Interested in selling in Lauren Pines?


