




$232,990
945 English Green Way
Woodruff, SC 29388
About This Property
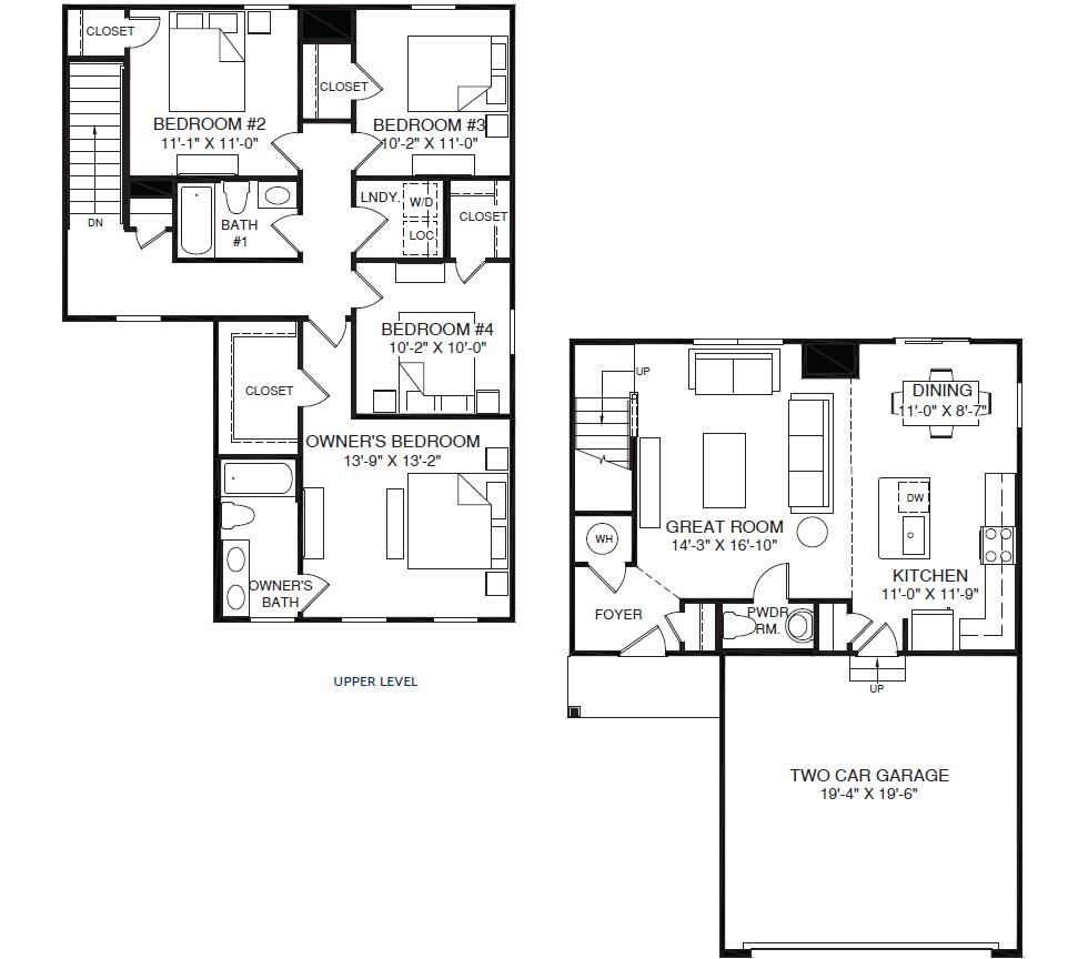
The Iris single-family home has the space you need and the style you want. Its open floor plan invites you into the welcoming foyer. The large great room is ideal for gatherings and flows seamlessly into a gourmet kitchen and dining area with a breakfast bar.
Upstairs, three bedrooms feature huge closets and quick access to a full bath. The luxurious owner's bedroom features a double vanity ensuite bath and large walk-in closet. The 2-car garage provides abundant storage, and did we mention all your appliances are included?!
Come see why The Iris is the right choice. Select from our professionally designed interior finishes with the help of our highly trained Sales Representative. You’ll love how easy it is to get the home of your dreams!
SPN MLS # 334860
Quick Facts
Time on Site
yesterday
Property Type
Residential
Year Built
2026
Lot Size
5,227 sqft
Price/Sq.Ft.
$140
Property Details
Schools
Features & Amenities
Features:
- Cable Available
- Attic Stairs Pulldown
- Walk-In Closet(s)
- Ceiling - Smooth
- Solid Surface Counters
- Laminate Counters
- Open Floorplan
- Pantry
- Radon Mitigation System
- Smart Home
Location & Map
Map View
Loading map...
Additional Information
Basement
Security
- Smoke Detector(s)
Community
- Common Areas
- Street Lights
- Playground
- Sidewalks
Lot & Land
- Level
- Sidewalk
Primary Suite
- Bath - Full
- Double Vanity
- Owner on 2nd level
- Shower Only
- Walk-in Closet
Interior Details
- Carpet
- Luxury Vinyl
- Vinyl
- Electric Cooktop
- Dishwasher
- Disposal
- Dryer
- Microwave
- Electric Oven
- Self Cleaning Oven
- Electric Range
- Range
- Refrigerator
- Washer
- Tilt-Out
- 2nd Floor
- Cable Available
- Attic Stairs Pulldown
- Walk-In Closet(s)
- Ceiling - Smooth
- Solid Surface Counters
- Laminate Counters
- Open Floorplan
- Pantry
- Radon Mitigation System
- Smart Home
New Construction
Parking & Garage
- 2 Car Attached
- Garage Door Opener
- Garage
Exterior Features
- Composition
- Paved
- Paved-Concrete
- Aluminum/Vinyl Trim
- Slab
- Vinyl Siding
- Patio
- Porch
H O A & Association
- See Remarks
- Street Lights
Property Overview
- Two
- Craftsman
Utilities & Systems
- Public Sewer
- Central Air
- Forced Air
- Public


