




$239,999
644 Eden Hall Road
Woodruff, SC 29388
About This Property
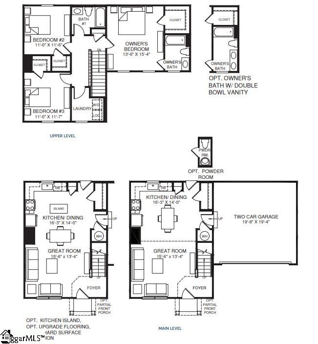
The Aspen single-family home has it all. Enter the huge great room and immediately feel at home. The first floor's open concept means you are never far from the action.
A cozy kitchen features an optional island; add a powder room for convenience. The entry off the garage provides a convenient spot for coats, so clutter is never an issue. Upstairs all 3 bedrooms are large and boast ample closets.
A hall bath and laundry room provide total comfort. The owner's suite is the star of the home, with an en-suite bath and huge walk-in closet. Experience all that The Aspen has to give.
GVL MLS # 1577635
Quick Facts
Time on Site
3 months ago
Property Type
Residential
Lot Size
6,534 sqft
Price/Sq.Ft.
$167
HOA Fees
$600/yr
Property Details
Schools
Features & Amenities
Features:
- Ceiling Smooth
- Open Floorplan
- Walk-In Closet(s)
Location & Map
Map View
Loading map...
Additional Information
Community
- Common Areas
- Street Lights
- Pool
- Sidewalks
- Other
- Walking Trails
Lot & Land
- 1/2 Acre or Less
- Few Trees
Tax Information
Interior Details
- Carpet
- Vinyl
- Other
- Dishwasher
- Disposal
- Dryer
- Refrigerator
- Washer
- Free-Standing Electric Range
- Microwave
- Electric Water Heater
- 2nd Floor
- Walk-in
- Laundry Room
- Ceiling Smooth
- Open Floorplan
- Walk-In Closet(s)
Parking & Garage
- Attached
- Paved
- Garage Door Opener
Exterior Features
- Composition
- Attached
- Paved
- Garage Door Opener
- Slab
- Patio
- Vinyl Siding
H O A & Association
- Electricity
- Pool
- Recreation Facilities
- Street Lights
- By-Laws
- Restrictive Covenants
Property Overview
- Two
- Traditional
- Craftsman
Utilities & Systems
- Public Sewer
- Central Air
- Electric
- Damper Controlled
- Electric
- Damper Controlled
- Underground Utilities
- Cable Available
- Public
Listing Agent Information
The information is being provided by Greater Greenville MLS. Information deemed reliable but not guaranteed. Information is provided for consumers' personal, non-commercial use, and may not be used for any purpose other than the identification of potential properties for purchase. Copyright 2025 Greater Greenville MLS. All Rights Reserved.

