




$249,900
Discover Your Brand New Energy-Efficient Home in Woodruff, SC!
Woodruff, SC 29388
About This Property
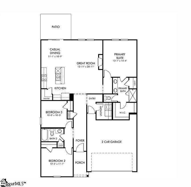
Brand new, energy-efficient home available by May 2025! Just down the hall from the generous secondary bedrooms, unwind in the primary suite, complete with dual sinks and an impressive walk-in closet. Pebble cabinets with white quartz countertops, EVP flooring, and carpet in our Balanced (3) Package.
Discover quiet and serene living at Vickery Station in Woodruff. Explore a variety of single-family homes with open-concept living spaces, designer finishes, and energy-efficient features. With easy access to downtown Woodruff, Woodruff School District, and everyday conveniences, Vickery Station is the perfect place to call home.
Each of our homes is built with innovative, energy-efficient features designed to help you enjoy more savings, better health, real comfort and peace of mind.
GVL MLS # 1553630
Quick Facts
Time on Site
11 months ago
Property Type
Residential
Year Built
2025
Lot Size
7,840 sqft
Price/Sq.Ft.
$162
HOA Fees
$375/yr
Property Details
Schools
Features & Amenities
Features:
- High Ceilings
Location & Map
Map View
Loading map...
Additional Information
Community
- Common Areas
- Street Lights
- Playground
- Sidewalks
Lot & Land
- 1/2 Acre or Less
- Few Trees
Tax Information
Interior Details
- Carpet
- Ceramic Tile
- Vinyl
- Dishwasher
- Free-Standing Gas Range
- Microwave
- Tankless Water Heater
- 1st Floor
- Laundry Room
- High Ceilings
- Gas Log
Parking & Garage
- Attached
- Paved
Exterior Features
- Architectural
- Attached
- Paved
- Slab
- Patio
- Vinyl Siding
H O A & Association
Property Overview
- One
- Craftsman
Utilities & Systems
- Public Sewer
- Central Air
- Electric
- Electric
- Forced Air
- Cable Available
- Public
Listing Agent Information
The information is being provided by Greater Greenville MLS. Information deemed reliable but not guaranteed. Information is provided for consumers' personal, non-commercial use, and may not be used for any purpose other than the identification of potential properties for purchase. Copyright 2025 Greater Greenville MLS. All Rights Reserved.


