




$264,990
446 Haddon Trail
Woodruff, SC 29388
About This Property
This Property Has Been Sold
This property sold 27 days ago and is no longer available for purchase.
View active listings in Rutledge Estates →4.99 FIXED! Ready for a QUICK CLOSE!
The WAYFARE is an open floor plan with spacious family room, kitchen with island, tiled backsplash, granite countertops, & walk-in pantry, half bath, and private study all on the first level. Upstairs features an excellent sized loft, walk-in laundry room, three bedrooms and two full baths. The master bedroom has a very impressive walk-in closet and full bath with quartz countertops, and double sinks.
Home also has a 2-car garage and extended back patio, backyard is extremely flat and usable featuring over 200 feet of depth! You will be hard pressed to find a more well appointed home at a lower price!
SPN MLS # 329963
Quick Facts
Time on Site
5 months ago
Property Type
Residential
Year Built
2025
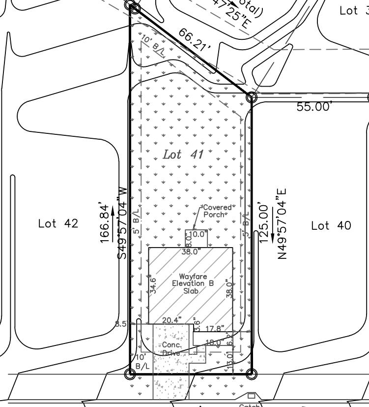
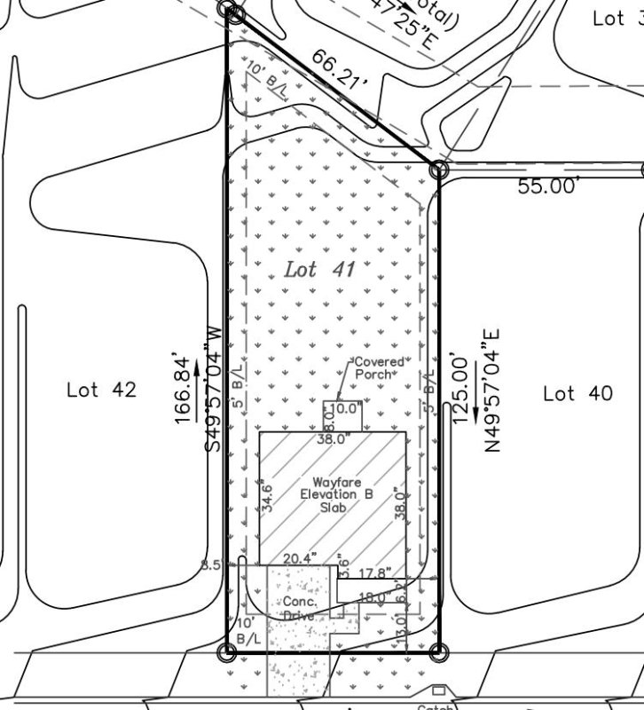
Lot Size
13,068 sqft
Price/Sq.Ft.
$117
Property Details
Schools
Features & Amenities
Features:
- Ceilings-Some 9 Ft +
- Soaking Tub
Location & Map
Map View
Loading map...
Additional Information
Basement
Lot & Land
- Level
Primary Suite
- Bath - Full
- Shower Only
Interior Details
- Carpet
- Luxury Vinyl
- Dishwasher
- Microwave
- Electric Range
- 2nd Floor
- Ceilings-Some 9 Ft +
- Soaking Tub
Parking & Garage
- Attached
Exterior Features
- Architectural
- Slab
- Vinyl Siding
H O A & Association
Property Overview
- Two
- Traditional
Utilities & Systems
- Public Sewer
- Central Air
- Zoned
- Forced Air
- Public
Listing Agent Information
You Might Also Like...
Interested in selling in Rutledge Estates?


