




$332,990
Spacious New 5 Bed, 3 Bath Home in Woodruff - Ready to Move In!
Woodruff, SC 29388
About This Property
This Property Has Been Sold
This property sold 5 months ago and is no longer available for purchase.
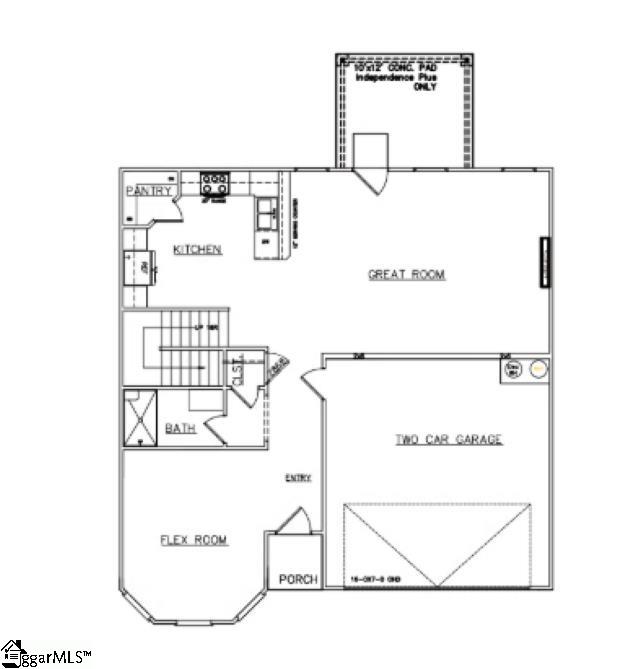
View active listings in Rutledge Estates →The Jodeco is one of our most beloved plans - it offers the open concept that everyone loves and the dedicated spaces that everyone needs. The front flex room offers versatility and can be used as an office, play room or formal dining room or bedroom. The main floor has 9' ceilings, recessed electric fireplace, ceiling fan, and blinds included through the house.
The open kitchen, dining and living space is perfect for entertaining your guests or family, no matter the occasion. The kitchen boasts stainless steel appliances, cup washing station, LED & pendant lighting, and a large walk in pantry. Upstairs you will find large rooms for both guests and the owner's suite.
The owner's suite also includes a bath with separate stand alone tub and walk in shower, LED & Bluetooth mirrors, and private water closet with smart toilet technology. This home has everything you are looking for plus all the features you didn't expect!
GVL MLS # 1549620
Quick Facts
Time on Site
1 year ago
Property Type
Residential
Year Built
2025
Lot Size
7,840 sqft
Price/Sq.Ft.
$142
HOA Fees
$600/yr
Property Details
Schools
Features & Amenities
Features:
- 2 Story Foyer
- High Ceilings
- Ceiling Fan(s)
- Ceiling Smooth
- Granite Counters
- Open Floorplan
- Soaking Tub
- Walk-In Closet(s)
- Pantry
Location & Map
Map View
Loading map...
Additional Information
Community
- Playground
Lot & Land
- 1/2 Acre or Less
Tax Information
Interior Details
- Carpet
- Ceramic Tile
- Vinyl
- Dishwasher
- Self Cleaning Oven
- Electric Oven
- Free-Standing Electric Range
- Microwave
- Electric Water Heater
- 2nd Floor
- Walk-in
- Electric Dryer Hookup
- Washer Hookup
- 2 Story Foyer
- High Ceilings
- Ceiling Fan(s)
- Ceiling Smooth
- Granite Counters
- Open Floorplan
- Soaking Tub
- Walk-In Closet(s)
- Pantry
- Ventless
Parking & Garage
- Attached
- Concrete
- Driveway
Exterior Features
- Architectural
- Attached
- Concrete
- Driveway
- Slab
- Patio
- Brick Veneer
- Vinyl Siding
H O A & Association
- Street Lights
- By-Laws
Property Overview
- Two
- Craftsman
- Transitional
Utilities & Systems
- Public Sewer
- Electric
- Electric
- Heat Pump
- Cable Available
- Public
Listing Agent Information
The information is being provided by Greater Greenville MLS. Information deemed reliable but not guaranteed. Information is provided for consumers' personal, non-commercial use, and may not be used for any purpose other than the identification of potential properties for purchase. Copyright 2025 Greater Greenville MLS. All Rights Reserved.
You Might Also Like...
Interested in selling in Rutledge Estates?


