


$541,149
246 Castlebar Street
Woodruff, SC 29388
About This Property
The Savannah plan is a beautiful five-bedroom, three-and-one-half-bathroom home with a two-car side-entry garage and a two-car detached garage with attic space. It features an open layout with luxury vinyl flooring throughout the main-level living areas. As you enter the home, you'll notice the stunning entryway leading to a dining room.
Just beyond that is the inviting great room and a spacious kitchen and sunroom. The open kitchen includes a gourmet gas cooktop and double wall oven—perfect for entertaining friends and family or hosting special holidays and get-togethers. Downstairs, you'll find an impressive primary suite with a walk-in closet, a private water closet, and a large, tiled walk-in shower.
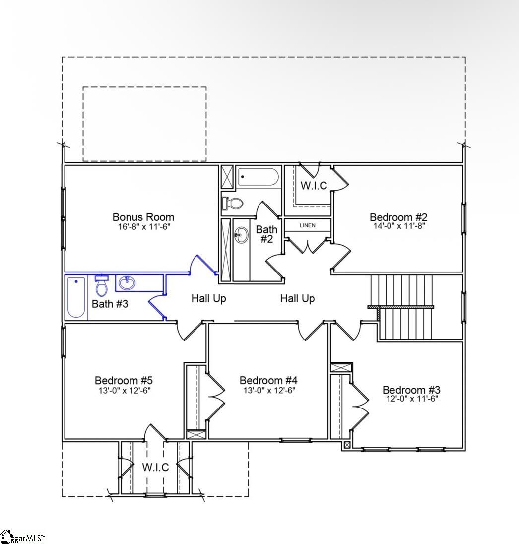
Upstairs, there are four generously sized bedrooms with large closets, two full bathrooms, and a spacious bonus area. Nestled close by the desirable town of Reidville, this thoughtfully designed community offers 51 spacious homesites of half an acre or more, providing ample room for outdoor living, privacy, and relaxation. With home designs ranging from 1,600 to 4,000 square feet, Ben’s Crossing caters to a variety of lifestyles, from growing families to those looking for a peaceful retreat with extra space.
GVL MLS # 1581603
Quick Facts
Time on Site
1 month ago
Property Type
Residential
Lot Size
24,829 sqft
Price/Sq.Ft.
$179
HOA Fees
$835/yr
Property Details
Schools
Features & Amenities
Features:
- High Ceilings
- Ceiling Fan(s)
- Ceiling Smooth
- Tray Ceiling(s)
- Open Floorplan
- Walk-In Closet(s)
- Countertops – Quartz
- Pantry
Location & Map
Map View
Loading map...
Additional Information
Community
- Common Areas
- Street Lights
- Playground
Lot & Land
- 1/2 - Acre
Tax Information
Interior Details
- Carpet
- Ceramic Tile
- Luxury Vinyl
- Gas Cooktop
- Dishwasher
- Disposal
- Double Oven
- Gas Water Heater
- Tankless Water Heater
- Sink
- 1st Floor
- Walk-in
- Electric Dryer Hookup
- Laundry Room
- High Ceilings
- Ceiling Fan(s)
- Ceiling Smooth
- Tray Ceiling(s)
- Open Floorplan
- Walk-In Closet(s)
- Countertops – Quartz
- Pantry
- Gas Log
Parking & Garage
- Attached
- Paved
- Garage Door Opener
- Side/Rear Entry
- Key Pad Entry
Exterior Features
- Architectural
- Attached
- Paved
- Garage Door Opener
- Side/Rear Entry
- Key Pad Entry
- Slab
- Patio
- Front Porch
- Rear Porch
- Hardboard Siding
- Under Ground Irrigation
H O A & Association
- Street Lights
- By-Laws
- Restrictive Covenants
Property Overview
- Two
- Craftsman
Utilities & Systems
- Septic Tank
- Central Air
- Electric
- Electric
- Underground Utilities
- Cable Available
- Public
Listing Agent Information
The information is being provided by Greater Greenville MLS. Information deemed reliable but not guaranteed. Information is provided for consumers' personal, non-commercial use, and may not be used for any purpose other than the identification of potential properties for purchase. Copyright 2025 Greater Greenville MLS. All Rights Reserved.

