




$254,999
240 Cobridge Lane
Woodruff, SC 29388
About This Property
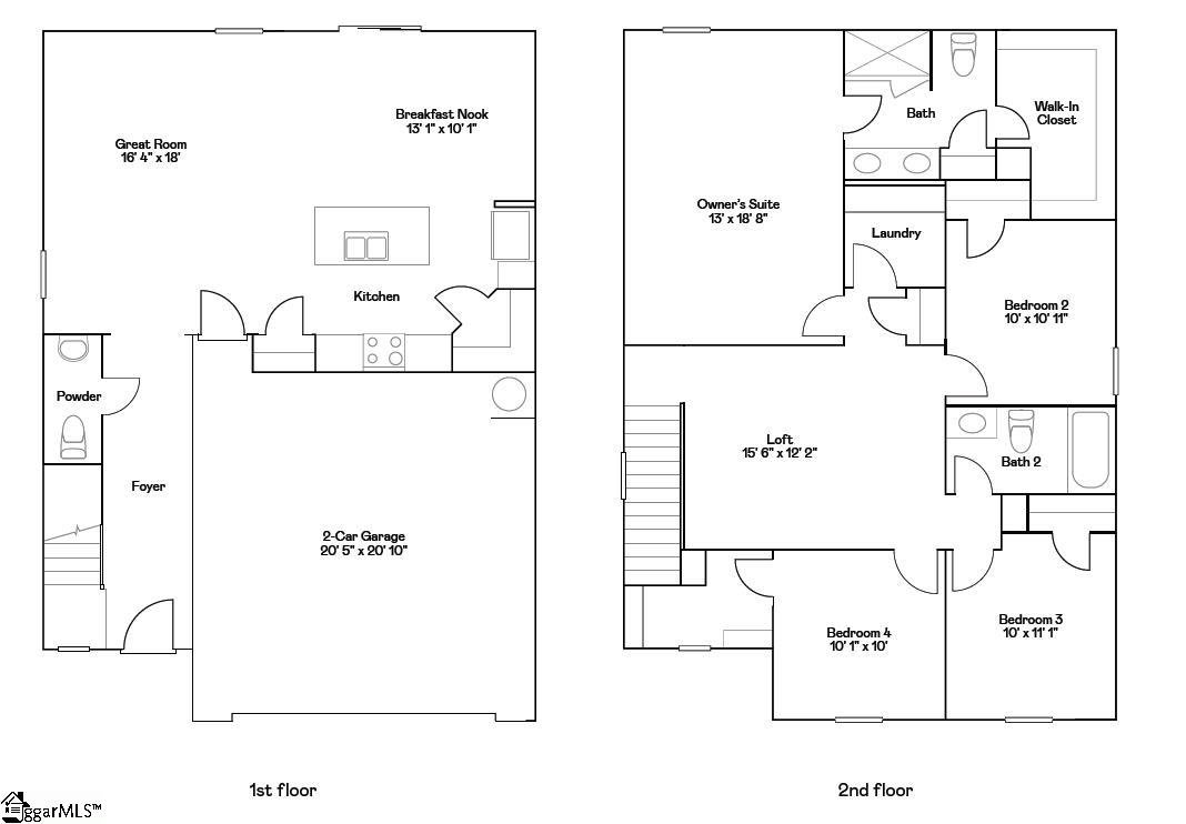
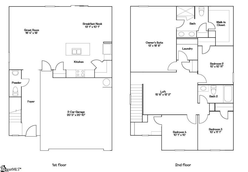
The Crane floorplan at Autumn Glen in Woodruff, SC, is designed to both comfort and convenience, making it the perfect family home. With 4 bedrooms and 2.5 bathrooms, this two-story layout is ideal for modern living.
The first floor features a spacious family room that seamlessly connects to the kitchen and breakfast area, creating an open, welcoming space for family gatherings and daily life. A two-car garage adds convenience and functionality. Upstairs, you'll find a versatile loft, perfect for additional living or play space, along with four restful bedrooms, including a large owner’s suite that serves as a private retreat.
This floorplan has everything a growing family needs, blending practicality with comfort. It's the ideal home for making lasting memories with your loved ones. It's ideal for families seeking a peaceful neighborhood with convenient connections to Greenville and Spartanburg.
GVL MLS # 1577427
Quick Facts
Time on Site
3 months ago
Property Type
Residential
Year Built
2025
Lot Size
7,840 sqft
Price/Sq.Ft.
$130
HOA Fees
$600/yr
Property Details
Schools
Features & Amenities
Features:
- Ceiling Smooth
- Open Floorplan
- Countertops-Other
- Countertops – Quartz
- Pantry
Location & Map
Map View
Loading map...
Additional Information
Community
- Common Areas
- Street Lights
Lot & Land
- 1/2 Acre or Less
Tax Information
Interior Details
- Carpet
- Laminate
- Dishwasher
- Disposal
- Free-Standing Gas Range
- Microwave
- Electric Water Heater
- 2nd Floor
- Walk-in
- Electric Dryer Hookup
- Laundry Room
- Ceiling Smooth
- Open Floorplan
- Countertops-Other
- Countertops – Quartz
- Pantry
Parking & Garage
- Attached
- Paved
- Garage Door Opener
Exterior Features
- Composition
- Attached
- Paved
- Garage Door Opener
- Slab
- Patio
- Vinyl Siding
H O A & Association
Property Overview
- Two
- Craftsman
Utilities & Systems
- Central Air
- Electric
- Forced Air
- Natural Gas
- Sewer Available
- Public
Listing Agent Information
The information is being provided by Greater Greenville MLS. Information deemed reliable but not guaranteed. Information is provided for consumers' personal, non-commercial use, and may not be used for any purpose other than the identification of potential properties for purchase. Copyright 2025 Greater Greenville MLS. All Rights Reserved.


