




$269,999
224 Cobridge Lane
About This Property
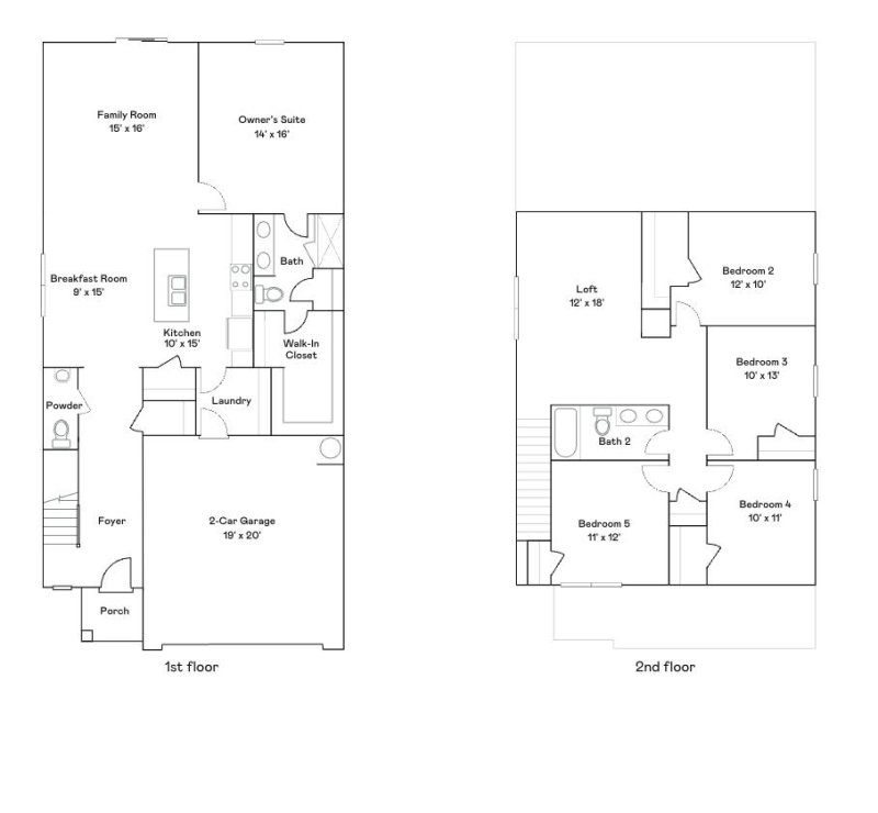
The Emerson plan at Autumn Glen in Woodruff, SC, is a dream family home. With 5 bedrooms and 2.5 bathrooms, this spacious two-story design offers an open, airy layout perfect for modern living.
The heart of the home is the gourmet kitchen with a large center island, perfect for family meals and gatherings. The cozy family room flows seamlessly into the breakfast area, creating a warm, inviting space. The owner's suite on the main floor offers a private retreat, while upstairs features a versatile loft and four spacious bedrooms, three with walk-in closets, providing room for everyone to grow and thrive.
It's the ideal home for making lasting memories with your loved ones. It's ideal for families seeking a peaceful neighborhood with convenient connections to Greenville and Spartanburg.
Quick Facts
Time on Site
1 month ago
Property Type
Residential
Year Built
2025
Lot Size
7,840 sqft
Price/Sq.Ft.
$117
Property Details
Schools
Features & Amenities
Location & Map
Map View
Loading map...
Additional Information
Basement
Security
- Smoke Detector(s)
Community
- Street Lights
Lot & Land
- Sloped
Primary Suite
- Bath - Full
- Double Vanity
- Owner on 2nd level
- Shower Only
- Walk-in Closet
Interior Details
- Carpet
- Luxury Vinyl
- Dishwasher
- Disposal
- Microwave
- Electric Oven
- Range - Smooth Top
- Free-Standing Range
- Bonus
- Breakfast Area
- Tilt-Out
- 2nd Floor
- Electric Dryer Hookup
- Walk-In
- Washer Hookup
- Cable Available
- Walk-In Closet(s)
- Ceiling - Smooth
- Solid Surface Counters
- Open Floorplan
- Walk-In Pantry
New Construction
Parking & Garage
- 2 Car Attached
- Garage Door Opener
Exterior Features
- Composition
- Aluminum/Vinyl Trim
- Slab
- Stone
- Vinyl Siding
H O A & Association
- Common Area
- Street Lights
Property Overview
- Two
- Craftsman
Utilities & Systems
- Public Sewer
- Central Air
- Zoned
- Forced Air
- Heat Pump
- Public
