




$243,899
15 Snowmill Road
About This Property
This Property Has Been Sold
This property sold 4 months ago and is no longer available for purchase.
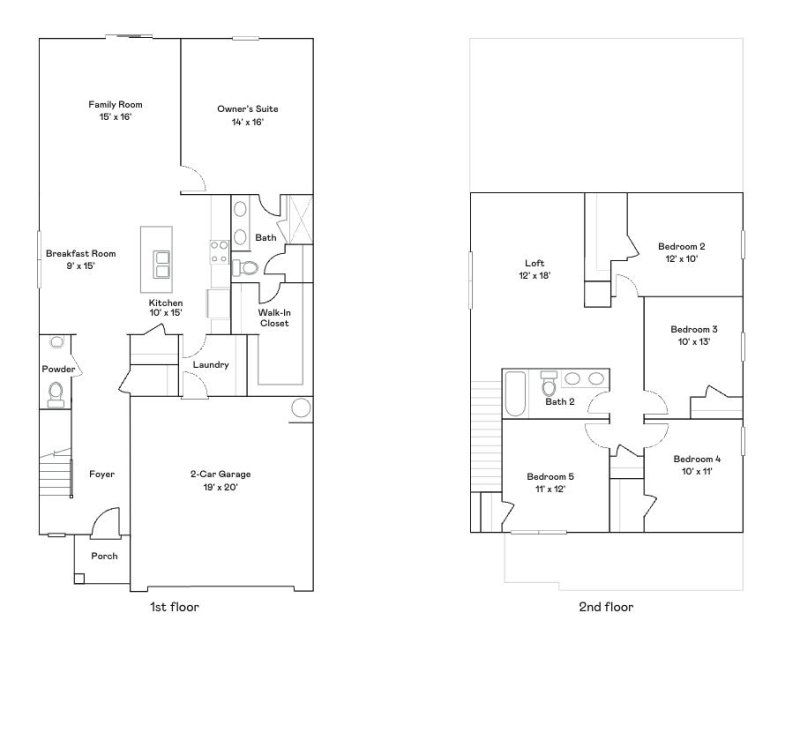
View active listings in Autumn Glen →The Crane floorplan at Autumn Glen in Woodruff, SC, is designed to both comfort and convenience, making it the perfect family home. With 4 bedrooms and 2.5 bathrooms, this two-story layout is ideal for modern living.
The first floor features a spacious family room that seamlessly connects to the kitchen and breakfast area, creating an open, welcoming space for family gatherings and daily life. A two-car garage adds convenience and functionality. Upstairs, you'll find a versatile loft, perfect for additional living or play space, along with four restful bedrooms, including a large owner’s suite that serves as a private retreat.
This floorplan has everything a growing family needs, blending practicality with comfort. It's the ideal home for making lasting memories with your loved ones. It's ideal for families seeking a peaceful neighborhood with convenient connections to Greenville and Spartanburg.
Quick Facts
Time on Site
9 months ago
Property Type
Residential
Year Built
2025
Lot Size
7,840 sqft
Price/Sq.Ft.
$125
Property Details
Schools
Features & Amenities
Location & Map
Map View
Loading map...
Additional Information
Basement
Security
- Smoke Detector(s)
Community
- Street Lights
Lot & Land
- Sloped
Primary Suite
- Bath - Full
- Double Vanity
- Owner on 2nd level
- Shower Only
- Walk-in Closet
Interior Details
- Carpet
- Luxury Vinyl
- Dishwasher
- Disposal
- Electric Oven
- Free-Standing Range
- Microwave
- Range
- Bonus
- Breakfast Area
- Tilt-Out
- 2nd Floor
- Electric Dryer Hookup
- Walk-In
- Washer Hookup
- Cable Available
- Walk-In Closet(s)
- Ceiling - Smooth
- Solid Surface Counters
- Open Floorplan
- Walk-In Pantry
New Construction
Parking & Garage
- 2 Car Attached
- Garage Door Opener
Exterior Features
- Composition
- Aluminum/Vinyl Trim
- Slab
- Stone
- Vinyl Siding
H O A & Association
- Common Area
- Street Lights
Property Overview
- Two
- Craftsman
Utilities & Systems
- Public Sewer
- Central Air
- Zoned
- Forced Air
- Heat Pump
- Public
