




$474,990
126 Mossend Street
Woodruff, SC 29388
About This Property
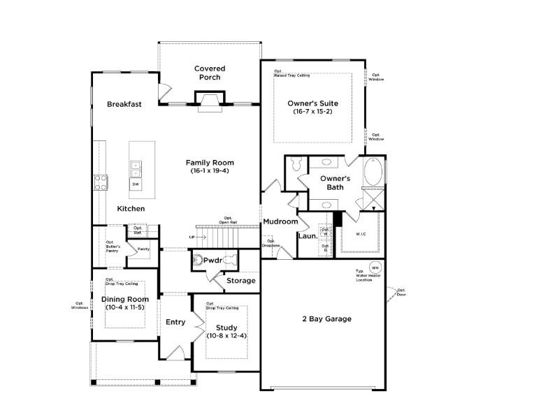
Discover exclusive living at Benjamin's Grove, a desirable new single-family homes community centrally located between Greenville and Spartanburg, SC. With more than 3,000 square feet, the Kendrick home provides expansive open-concept living, creating a natural space for entertaining on any scale. As you come into your entry hall from your rocking chair front porch, you have a study with trey ceilings and French doors that will make the perfect home office.
To your right, there is a formal dining room that leads into your butlers pantry giving you that extra counter space along with a large walk in pantry. Entering into your open kitchen and great room, you will be amazed by the features of the kitchen including beautiful white cabinetry, Quartz countertops, large center island with farmhouse sink and brown cabinet accents for additional prep space and seating, tiled backsplash, under cabinet lighting, and upgraded stainless steel gas appliances. The living room with the high ceilings and large windows gives lots of natural light along with a cozy gas fireplace.
The breakfast room leads out to your covered back porch which overlooks your backyard. The Primary Suite is situated off the living room and features split vanities, generous walk in closet, separate soaking tub and tiled shower with frameless glass door. The main level is completed with the mudroom off the garage that also leads to the walk in laundry room.
SPN MLS # 333777
Quick Facts
Time on Site
28 days ago
Property Type
Residential
Year Built
2026
Lot Size
7,840 sqft
Price/Sq.Ft.
$158
Property Details
Schools
Features & Amenities
Features:
- Ceiling Fan(s)
- Cable Available
- Ceilings-Some 9 Ft +
- Tray Ceiling(s)
- Attic Stairs Pulldown
- Fireplace
- Walk-In Closet(s)
- Ceiling - Smooth
- Solid Surface Counters
- Open Floorplan
- Walk-In Pantry
- Smart Home
Location & Map
Map View
Loading map...
Additional Information
Basement
Security
- Smoke Detector(s)
Community
- Common Areas
- Street Lights
- Playground
- Pool
- Walking Trails
Lot & Land
- Level
- Underground Utilities
Primary Suite
- Bath - Full
- Double Vanity
- Owner on Main Level
- Shower-Separate
- Tub-Separate
- Walk-in Closet
Interior Details
- Carpet
- Luxury Vinyl
- Dishwasher
- Disposal
- Microwave
- Gas Oven
- Self Cleaning Oven
- Gas Range
- Range
- Loft
- Office/Study
- Tilt-Out
- 1st Floor
- Electric Dryer Hookup
- Walk-In
- Ceiling Fan(s)
- Cable Available
- Ceilings-Some 9 Ft +
- Tray Ceiling(s)
- Attic Stairs Pulldown
- Fireplace
- Walk-In Closet(s)
- Ceiling - Smooth
- Solid Surface Counters
- Open Floorplan
- Walk-In Pantry
- Smart Home
- Gas Log
New Construction
Parking & Garage
- 2 Car Attached
- Garage Door Opener
Exterior Features
- Architectural
- Slab
- Hardboard Siding
- Porch
- Covered Patio
H O A & Association
- Pool
- Street Lights
Property Overview
- Two
- Craftsman
Utilities & Systems
- Public Sewer
- Central Air
- Forced Air
- Public


