




$494,990
123 Mossend Street
Woodruff, SC 29388
About This Property
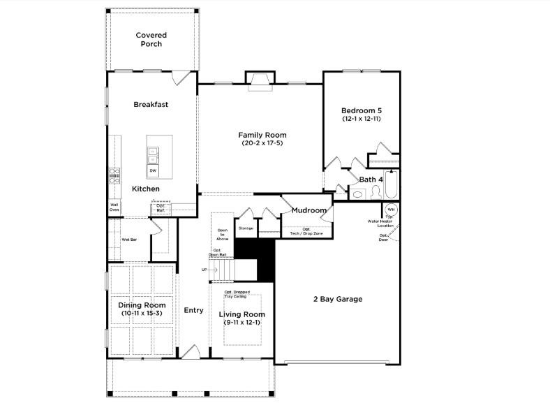
Discover exclusive living at Benjamin's Grove, a desirable new single-family homes community centrally located between Greenville and Spartanburg, SC. The Craftsman Stonehaven home is ideal for those desiring a spacious, customizable home with both private retreats and expansive areas for gathering. Entering the grand entry hall from your rocking chair front porch you have a formal living room to the right that could also be a great home office.
To the left, you have your formal dining room with coffered ceilings that then leads through your butlers pantry with wet bar giving you extra counter space along with a walk in pantry. Coming into the open kitchen and great room, the high ceilings and tall windows flood the room with lots of natural light as well as a cozy gas fireplace. The gourmet kitchen features a central island with sink, stacked white cabinetry, Quartz countertops, a tiled backsplash, under cabinet lighting and upgraded stainless steel appliances including a gas cooktop, double wall oven and range hood.
The breakfast room leads out to the covered porch overlooking your large backyard. There is also a bedroom and full bath off the great room that would make a great guest suite or even a home office. A powder room and mudroom off of the garage complete the main level.
SPN MLS # 333778
Quick Facts
Time on Site
28 days ago
Property Type
Residential
Year Built
2026
Lot Size
9,583 sqft
Price/Sq.Ft.
$135
Property Details
Schools
Features & Amenities
Features:
- Cable Available
- Ceilings-Some 9 Ft +
- Attic Stairs Pulldown
- Fireplace
- Walk-In Closet(s)
- Wet Bar
- Ceiling - Smooth
- Solid Surface Counters
- Open Floorplan
- Coffered Ceiling(s)
- Walk-In Pantry
- Smart Home
Location & Map
Map View
Loading map...
Additional Information
Basement
Security
- Smoke Detector(s)
Community
- Common Areas
- Street Lights
- Playground
- Pool
- Walking Trails
Lot & Land
- Level
- Underground Utilities
Primary Suite
- Bath - Full
- Double Vanity
- Multiple Closets
- Owner on 2nd level
- Shower-Separate
- Tub-Separate
- Walk-in Closet
Interior Details
- Carpet
- Luxury Vinyl
- Gas Cooktop
- Dishwasher
- Disposal
- Microwave
- Double Oven
- Gas Oven
- Self Cleaning Oven
- Wall Oven
- Gas Range
- Range Hood
- Tilt-Out
- 2nd Floor
- Electric Dryer Hookup
- Walk-In
- Cable Available
- Ceilings-Some 9 Ft +
- Attic Stairs Pulldown
- Fireplace
- Walk-In Closet(s)
- Wet Bar
- Ceiling - Smooth
- Solid Surface Counters
- Open Floorplan
- Coffered Ceiling(s)
- Walk-In Pantry
- Smart Home
- Gas Log
New Construction
Parking & Garage
- 2 Car Attached
- Garage Door Opener
Exterior Features
- Architectural
- Slab
- Hardboard Siding
- Porch
- Covered Patio
H O A & Association
- Pool
- Street Lights
Property Overview
- Two
- Craftsman
Utilities & Systems
- Public Sewer
- Central Air
- Forced Air
- Public


