




$284,999
120 Crew Street
Woodruff, SC 29388
About This Property
This Property Has Been Sold
This property sold 3 months ago and is no longer available for purchase.
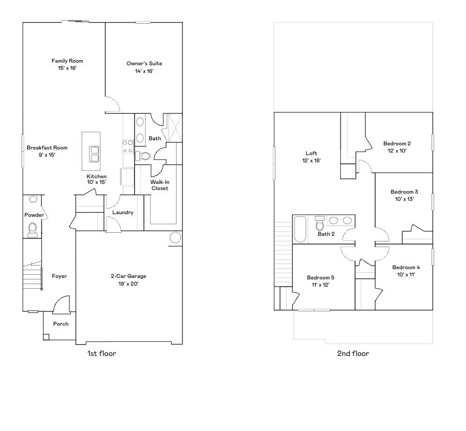
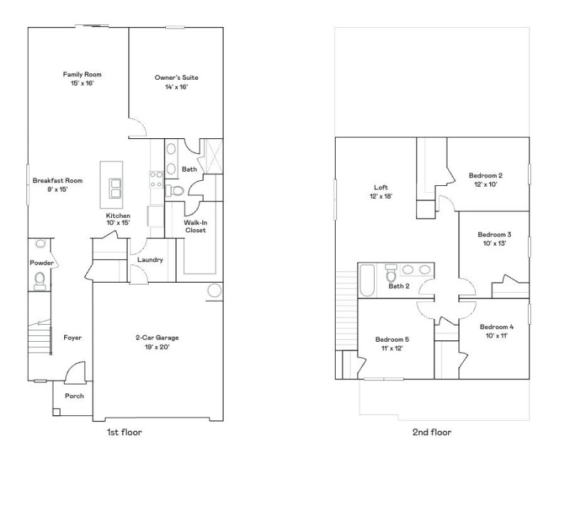
View active listings in Autumn Glen →The Frost floorplan at Autumn Glen in Woodruff SC, is the perfect home for a growing family. With 5 bedrooms and 3 bathrooms, this spacious two-story design provides room for everyone to thrive. The first floor boasts an open layout, with the family room, kitchen, and breakfast area flowing together to create a warm, inviting space for daily living and entertaining.
A secluded secondary bedroom is perfect for guests, along with a convenient two-car garage. Upstairs, a versatile flex room offers extra living space, while four bedrooms, including a large owner’s suite, provide comfort and privacy. The Frost floorplan combines style, function, and space for the entire family to enjoy.
It's the ideal home for making lasting memories with your loved ones. It's ideal for families seeking a peaceful neighborhood with convenient connections to Greenville and Spartanburg.
SPN MLS # 328364
Quick Facts
Time on Site
7 months ago
Property Type
Residential
Year Built
2025
Lot Size
7,840 sqft
Price/Sq.Ft.
$111
Property Details
Schools
Features & Amenities
Features:
- Cable Available
- Walk-In Closet(s)
- Ceiling - Smooth
- Solid Surface Counters
- Open Floorplan
- Walk-In Pantry
Location & Map
Map View
Loading map...
Additional Information
Basement
Security
- Smoke Detector(s)
Community
- Street Lights
Lot & Land
- Sloped
Primary Suite
- Bath - Full
- Double Vanity
- Owner on 2nd level
- Shower Only
- Walk-in Closet
Interior Details
- Carpet
- Luxury Vinyl
- Dishwasher
- Disposal
- Microwave
- Electric Oven
- Range - Smooth Top
- Free-Standing Range
- Bonus
- Breakfast Area
- Tilt-Out
- 2nd Floor
- Electric Dryer Hookup
- Walk-In
- Washer Hookup
- Cable Available
- Walk-In Closet(s)
- Ceiling - Smooth
- Solid Surface Counters
- Open Floorplan
- Walk-In Pantry
New Construction
Parking & Garage
- 2 Car Attached
- Garage Door Opener
Exterior Features
- Composition
- Aluminum/Vinyl Trim
- Slab
- Stone
- Vinyl Siding
H O A & Association
- Common Area
- Street Lights
Property Overview
- Two
- Craftsman
Utilities & Systems
- Public Sewer
- Central Air
- Zoned
- Forced Air
- Heat Pump
- Public
Listing Agent Information
You Might Also Like...
Interested in selling in Autumn Glen?


