




$429,990
119 Mossend Street
Woodruff, SC 29388
About This Property
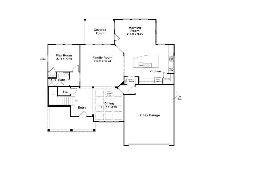
Discover exclusive living at Benjamin's Grove, a desirable new single-family homes community centrally located between Greenville and Spartanburg, SC. This Craftsman-style Arlington home with James Hardie siding showcases over 2,700 square feet of expansive living space, an entertainer’s dream. The covered front porch leads into your grand entryway and adjacent formal dining room with coffered ceilings.
The living room with its high ceilings and tall windows give lots of natural light and flows into the open kitchen and morning room. Features of the kitchen include an oversized island with farmhouse sink for extra prep space and additional seating, staggered soft white cabinetry and Quartz countertops, tiled backsplash, under cabinet lighting and gourmet stainless steel appliances including a gas cooktop, double wall oven and range hood. The all season morning room leads out to the covered back porch overlooking your corner yard.
There is also an additional bedroom and full bath off the living room that would make a perfect home office or even a guest room. Up the Oak staircase are 3 spacious bedrooms including the Primary Suite which features trey ceilings, double sinks, walk in closet and amazing Roman tiled shower with dual showerheads, seat and frameless glass door. Two additional bedrooms, a full bath with double sinks, walk in laundry room, and generous loft space complete the second floor.
SPN MLS # 333775
Quick Facts
Time on Site
28 days ago
Property Type
Residential
Year Built
2026
Lot Size
10,018 sqft
Price/Sq.Ft.
$154
Property Details
Schools
Features & Amenities
Features:
- Cable Available
- Ceilings-Some 9 Ft +
- Tray Ceiling(s)
- Attic Stairs Pulldown
- Walk-In Closet(s)
- Ceiling - Smooth
- Solid Surface Counters
- Open Floorplan
- Coffered Ceiling(s)
- Walk-In Pantry
- Smart Home
Location & Map
Map View
Loading map...
Additional Information
Basement
Security
- Smoke Detector(s)
Community
- Common Areas
- Street Lights
- Playground
- Pool
- Walking Trails
Lot & Land
- Corner Lot
- Level
- Underground Utilities
Primary Suite
- Bath - Full
- Double Vanity
- Owner on 2nd level
- Shower Only
- Walk-in Closet
Interior Details
- Carpet
- Luxury Vinyl
- Gas Cooktop
- Dishwasher
- Disposal
- Microwave
- Double Oven
- Gas Oven
- Self Cleaning Oven
- Wall Oven
- Range Hood
- Tilt-Out
- 2nd Floor
- Electric Dryer Hookup
- Walk-In
- Cable Available
- Ceilings-Some 9 Ft +
- Tray Ceiling(s)
- Attic Stairs Pulldown
- Walk-In Closet(s)
- Ceiling - Smooth
- Solid Surface Counters
- Open Floorplan
- Coffered Ceiling(s)
- Walk-In Pantry
- Smart Home
New Construction
Parking & Garage
- 2 Car Attached
- Garage Door Opener
Exterior Features
- Architectural
- Slab
- Hardboard Siding
- Porch
- Covered Patio
H O A & Association
- Pool
- Street Lights
Property Overview
- Two
- Craftsman
Utilities & Systems
- Public Sewer
- Central Air
- Forced Air
- Public

