

$394,900
303 Jasmine Way
Williamston, SC 29697
About This Property
This Property Has Been Sold
This property sold 2 days ago and is no longer available for purchase.
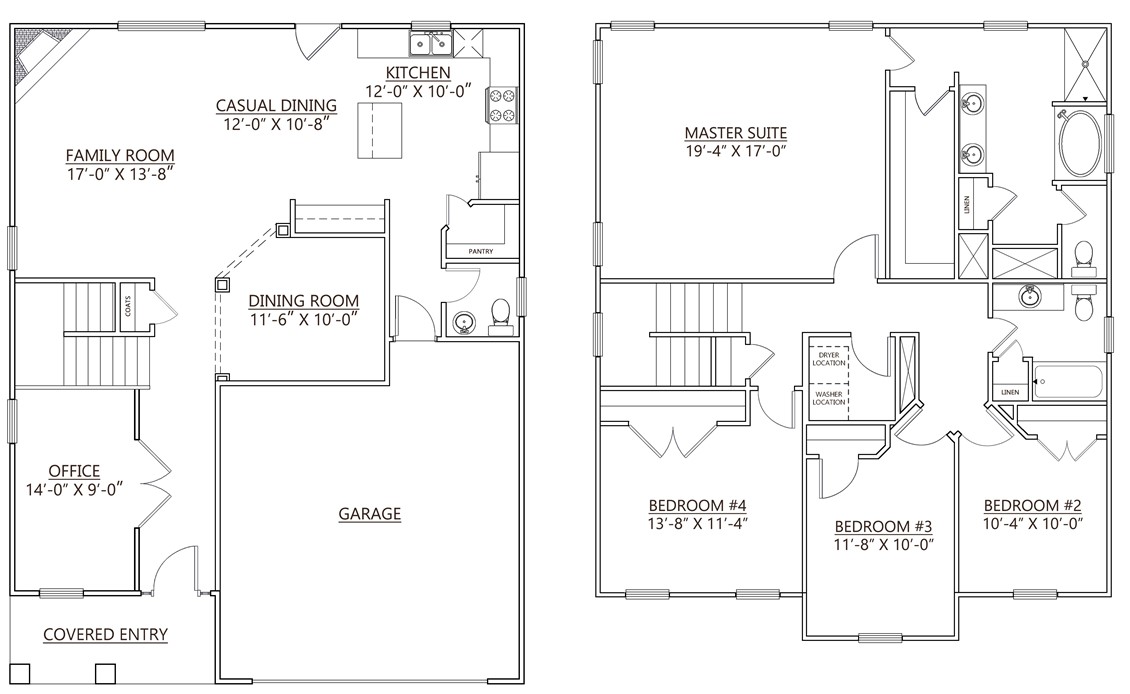
View active listings in Hemlock →Check out 303 Jasmine Way, a stunning new home in our Hemlock community! This thoughtfully designed two-story home features four bedrooms, two and a half bathrooms, and a two-car garage. With its flexible layout and modern flow, this home is perfect for both everyday living and entertaining.
From the covered entry, step into a welcoming foyer that leads to a dedicated office and a formal dining room. The kitchen includes modern appliances, a pantry, and a large island that overlooks the casual dining area and living room, creating an open and connected space for gatherings of any size.
Upstairs, the primary suite provides a relaxing retreat with a spacious bathroom featuring dual vanities, a soaking tub, a separate shower, and a walk-in closet. Three additional bedrooms and a full bathroom are also located on the second floor, along with a conveniently placed laundry area. With its comfortable design, open living areas, and thoughtful details throughout, this home blends modern style with everyday functionality. Pictures are representative.
WUM MLS # 1146498518
Quick Facts
Time on Site
4 months ago
Property Type
Residential
Year Built
2025
Lot Size
27,442 sqft
Price/Sq.Ft.
$167
Property Details
Schools
Features & Amenities
Location & Map
Map View
Loading map...
Additional Information
Lot & Land
- Level
- OutsideCityLimits
- Subdivision
Community & H O A
Tax Information
Parking & Garage
- Attached
- Garage
- Driveway
- GarageDoorOpener
Property Details
- RadonMitigationSystem
- SmokeDetectors
Exterior Features
- Architectural
- Shingle
- FrontPorch
- Patio
- SprinklerIrrigation
- Porch
- Patio
Interior Features
- Carpet
- LuxuryVinylPlank
- Vinyl
- Dishwasher
- ElectricOven
- ElectricRange
- Disposal
- GasWaterHeater
- Microwave
- BreakfastRoomNook
- LivingRoom
- Office
- TrayCeilings
- DualSinks
- Fireplace
- GardenTubRomanTub
- HighCeilings
- BathInPrimaryBedroom
- PullDownAtticStairs
- SmoothCeilings
- SolidSurfaceCounters
- SeparateShower
- CableTv
- UpperLevelPrimary
- VaultedCeilings
- WalkInClosets
- WalkInShower
- BreakfastArea
Systems & Utilities
- CentralAir
- Electric
- ForcedAir
- ForcedAir
- NaturalGas
Listing Agent Information
This information is deemed reliable, but not guaranteed. Neither, the Western Upstate Association of REALTORS®, Inc. or Western Upstate Multiple Listing Service of South Carolina Inc., nor the listing broker, nor their agents or subagents are responsible for the accuracy of the information. The buyer is responsible for verifying all information. This information is provided by the Western Upstate Association of REALTORS®, Inc. and Western Upstate Multiple Listing Service of South Carolina, Inc. for use by its members and is not intended for the use for any other purpose. Information is provided for consumers' personal, non-commercial use, and may not be used for any purpose other than the identification of potential properties for purchase. The data relating to real estate for sale on this Web site comes in part from the Broker Reciprocity Program of the Western Upstate Association of REALTORS®, Inc. and the Western Upstate Multiple Listing Service, Inc.
You Might Also Like...
Interested in selling in Hemlock?


