




$347,949
Wildwood Trail Lot 8B
Westminster, SC 29693
About This Property
This Property Has Been Sold
This property sold 3 months ago and is no longer available for purchase.
View active listings in West Lake Estates →A BRAND-NEW HOME, in A Beautiful Lake Hartwell Community called Westlake. Can You Say LAKE LIFE?! Here in the foothills of the Blueridge Mountains you’ll find Lake Hartwell and this Amazing Opportunity!
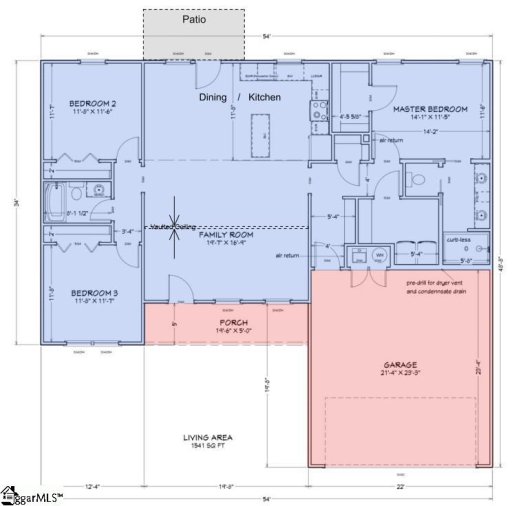
This 1,541 square foot home has 3 large bedrooms, 2 full baths, a covered front porch, and a patio to entertain your guest and family for years to come! This home is designed with a split bedroom plan, with the Master on one side and 2 bedrooms, a bath on the other, and a Large Open Family Room / Kitchen in the middle. Westlake is an Amazing Community that sits on Lake Hartwell.
This community offers a Community Dock (with 48hr tie up privileges), Boat House, and Gazebo available to all its residents, (Please see photos). Lake Hartwell is a Large man-made reservoir (87.5 sq miles), bordering both South Carolina and Georgia, encompassing parts of Savannah, Tagalog, and Seneca Rivers.
GVL MLS # 1527356
Quick Facts
Time on Site
2 years ago
Property Type
Residential
Lot Size
16,117 sqft
Price/Sq.Ft.
$228
HOA Fees
$400/mo
Property Details
Schools
Features & Amenities
Features:
- Vaulted Ceiling(s)
- Granite Counters
- Open Floorplan
- Walk-In Closet(s)
Location & Map
Map View
Loading map...
Additional Information
Community
- Other
Lot & Land
- 1/2 Acre or Less
- Other
Tax Information
Interior Details
- Luxury Vinyl
- Dishwasher
- Refrigerator
- Electric Oven
- Microwave
- Electric Water Heater
- 1st Floor
- Garage/Storage
- Walk-in
- Electric Dryer Hookup
- Washer Hookup
- Laundry Room
- Vaulted Ceiling(s)
- Granite Counters
- Open Floorplan
- Walk-In Closet(s)
Parking & Garage
- Attached
- Other
Exterior Features
- Architectural
- Attached
- Other
- Slab
- Front Porch
- Vinyl Siding
H O A & Association
- Other/See Remarks
Property Overview
- One
- Contemporary
Utilities & Systems
- Septic Tank
- Electric
- Electric
- Public
Listing Agent Information
The information is being provided by Greater Greenville MLS. Information deemed reliable but not guaranteed. Information is provided for consumers' personal, non-commercial use, and may not be used for any purpose other than the identification of potential properties for purchase. Copyright 2025 Greater Greenville MLS. All Rights Reserved.
You Might Also Like...
Interested in selling in West Lake Estates?


