




$249,990
629 Silica Court
West Columbia, SC 29170
About This Property
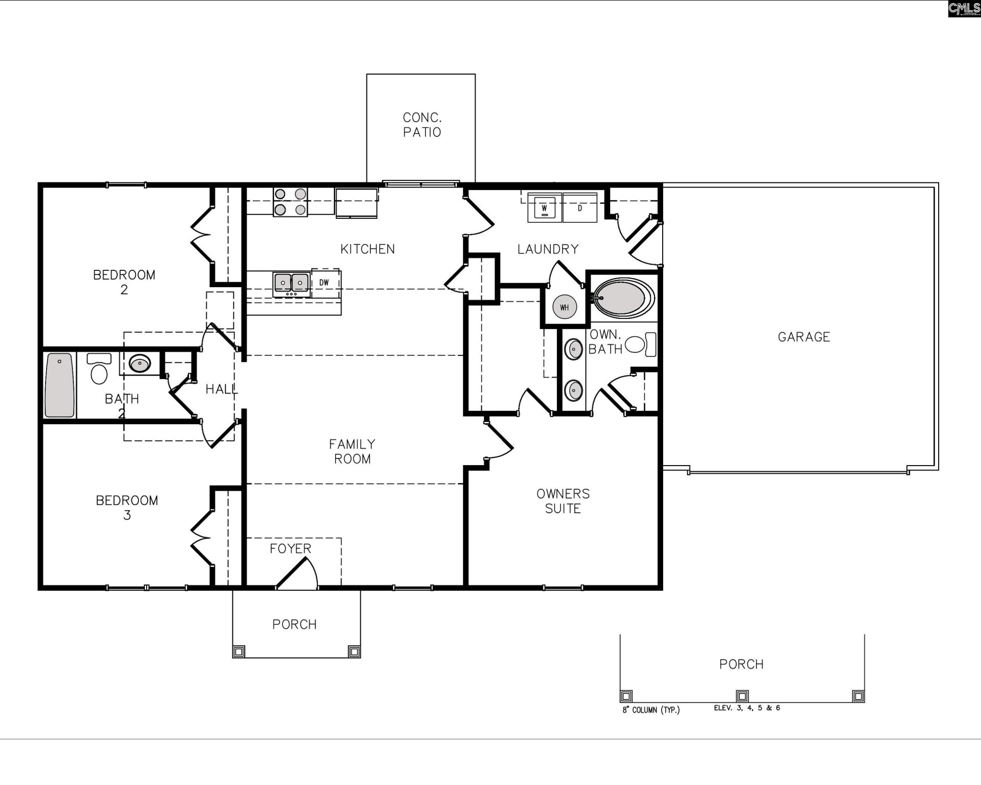
Welcome to Amber Hill, a brand-new neighborhood of thoughtfully designed new construction homes by Hurricane Builders, located in West Columbia, SC 29170—where space, simplicity, and smart design come together. Homes built ahead of the curve.This home, The Shelby, is a 3-bedroom, 2-bath Ranch-Style residence built with modern living in mind.
The single-level floor plan offers an open, functional layout that flows effortlessly from living to dining to kitchen, making everyday life and entertaining both easy and comfortable. A two-car garage provides ample space for vehicles, storage, or weekend projects.What truly sets Amber Hill apart is the land.
Every home sits on a minimum half-acre lot, giving homeowners room to breathe—whether that means a future workshop, garden, play area, or simply enjoying privacy that’s increasingly hard to find in new construction communities.Hurricane Builders is known for quality craftsmanship and attention to detail, delivering homes that balance durability with clean, modern finishes. These homes are ideal for buyers seeking new construction without sacrificing lot size or location.
COL MLS # 623815
Quick Facts
Time on Site
3 months ago
Property Type
Residential
Year Built
2025
Lot Size
21,867 sqft
Price/Sq.Ft.
$181
Property Details
Schools
Features & Amenities
Location & Map
Map View
Loading map...
Additional Information
Lot & Land
Parking & Garage
- Garage Attached
- Front Entry
Exterior Features
Property Overview
Utilities & Systems
Listing Agent Information
Details provided by Consolidated MLS and may not match the public record. Learn more. The information is being provided by Consolidated Multiple Listing Service, Inc. Information deemed reliable but not guaranteed. Information is provided for consumers' personal, non-commercial use, and may not be used for any purpose other than the identification of potential properties for purchase. © 2025 Consolidated Multiple Listing Service, Inc. All Rights Reserved.


