



Hallmark Commons
1/4
$175k
Hallmark Commons
SOLD
$175k
$174,990
Sold: $174,990
220 Wayfair Ln
Wellford, SC 29385
4Beds
3Baths
1,811Sq Ft
2019Built
About This Property
This Property Has Been Sold
This property sold 6 years ago and is no longer available for purchase.
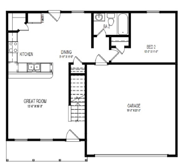
View active listings in Hallmark Commons →PROMO PRICE! Completion date is October 2019. 1802-B NEW 2-story home with 2-car garage!
The main floor features a great room that connects to the dining room and kitchen. Also, on the main floor is a bedroom and full bath. The 2nd floor features the owner's suite with walk-in closet and private bathroom.
Additionally, upstairs are 2 other bedrooms, another full bath, spacious loft, and the laundry room. Haggle free pricing. No negotiation necessary.
SPN MLS # 255953
Quick Facts
Time on Site
7 years ago
Property Type
Residential
Year Built
2019
Price/Sq.Ft.
$97
Property Details
Bedrooms:
4
Bathrooms:
3
Living Area:
1,811 SqFt
Total Area:
1,811 SqFt
Sub-Type:
SingleFamilyResidence
Schools
Elementary:
Wellford Elem
Middle:
Dr Hill Middle
High:
Other
School assignments may change. Contact the school district to confirm.
Features & Amenities
Location & Map
Map View
Loading map...
Additional Information
Basement
Finished Sq Ft Below Grade
0
Security
Security Features
- Smoke Detector(s)
Lot & Land
Lot Features
- See Remarks
Lot Dimensions
120x50x120x50
Primary Suite
Features
- Bath - Full
- Double Vanity
- Owner on 2nd level
- Walk-in Closet
Interior Details
Flooring
- Carpet
- Vinyl
Appliances
- Dishwasher
- Free-Standing Range
Specialty Rooms
Loft
Window Features
- Insulated Windows
Interior Features
- Walk-In Closet(s)
Parking & Garage
Garage Spaces
2
Parking Features
- Attached
- Garage
Exterior Features
Roof
- Composition
Storage
Garage
Driveway
Paved
Foundation Details
- Slab
Construction Materials
- Vinyl Siding
H O A & Association
Mandatory H O A
Yes
Association Fee
335
Property Overview
County
Spartanburg
Levels
- Two
Subdivision
Hallmark Commons
Approximate Age
To Be Built
School District
5 Sptbg Co
Architectural Style
- Traditional
Main Level Bedrooms
1
Main Level Bathrooms
1
Utilities & Systems
Sewer
- Public Sewer
Heating
- Heat Pump
Cooling Fuel
Electricity
Heating Fuel
Electricity
Water Heater
Electric
Water Source
- Private
Garbage Pickup
Private
Listing Agent Information
Listing Courtesy
WADE JURNEY of WJH LLC
Request Showing From Palmetto Park Realty Team
Spartanburg: (864) 757-4000
You Might Also Like...
Interested in selling in Hallmark Commons?


