


$514,900
117 Chapel Crossing Lane
Weaverville, NC 28787
About This Property
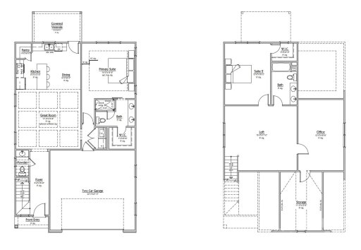
Introducing 117 Chapel Crossing lane, an exceptional new construction home built in close proximity to downtown Weaverville. This custom home is perfectly positioned to allow you to take in the convenient location and immerse yourself in the blend of comfort and elegance! We invite you to step inside to a warm and inviting living space where 9 foot ceilings, 8 foot doors and expansive windows bring in an abundance of natural light. This spacious main level offers an open concept living that seamlessly blends the kitchen, dining, and living areas into one. The Kitchen allows for ease of entertainment and offers desired finishings. The primary bedroom on this main level features a tray ceiling, a luxury ensuite and walk in closet. The upper level features an elevated secondary bedrooms, loft, full bathroom and unfinished storage. While this home and community offer serenity, be ready to have desired convenience being minutes from shopping, restaurants and entertainment. 117 Chapel Crossing is calling your name, be ready to be spoiled with its charm, views and unbeatable location. Now allowing you to customize this home to your desires.
Open Houses every Saturday and Sunday!
CAR MLS # 296191842
Quick Facts
Time on Site
2 months ago
Property Type
Residential
Year Built
2026
Price/Sq.Ft.
$261
Property Details
Schools
Features & Amenities
Location & Map
Map View
Loading map...
Additional Information
Utilities
- Septic Installed
- Shared Septic
- Other - See Remarks
- City
Lot And Land
Agent Contacts
- Palmetto Park Realty Team Fort Mill: 803.548.6123
Interior Details
- Electric
- Heat Pump
- Zoned
- Carpet
- Laminate
- Sustainable
- Tile
- Wood
- Insulated Door(s)
- Insulated Window(s)
- Electric Dryer Hookup
- Laundry Closet
- Main Level
- Washer Hookup
- Carbon Monoxide Detector(s)
- Smoke Detector(s)
Exterior Features
- Architectural Shingle
- Hardboard Siding
- Stone Veneer
- Covered
- Front Porch
- Patio
Parking And Garage
- Driveway
- Attached Garage
- Garage Door Opener
- Garage Faces Front
- Keypad Entry
Financial Information
Basement And Foundation
- Slab
Zoning And Restrictions
Square Footage And Levels
- Two
Additional C A R Information
IDX information is provided exclusively for consumers' personal, non-commercial use only; it may not be used for any purpose other than to identify prospective properties consumers may be interested in purchasing. Data is deemed reliable but is not guaranteed accurate by the MLS GRID. Use of this site may be subject to an end user license agreement. Based on information submitted to the MLS GRID as of Fri, Apr 3, 2026. All data is obtained from various sources and may not have been verified by broker or MLS GRID. Supplied Open House Information is subject to change without notice. All information should be independently reviewed and verified for accuracy. Properties may or may not be listed by the office/agent presenting the information. Some IDX listings have been excluded from this website. Any use by you of search facilities of data on the site, other than by a consumer looking to purchase real estate, is prohibited. DMCA Notice: Palmetto Park Realty respects the intellectual property rights of others. If you believe that your work has been copied in a way that constitutes copyright infringement, please provide our designated agent with written notice containing the following information: (1) identification of the copyrighted work claimed to have been infringed; (2) identification of the material that is claimed to be infringing; (3) your contact information; (4) a statement that you have a good faith belief that use of the material is not authorized; and (5) a statement that the information in the notification is accurate and you are authorized to act on behalf of the copyright owner. Please send DMCA notices to: [email protected]