




$294,999
511 Waveland Drive
Travelers Rest, SC 29690
About This Property
This Property Has Been Sold
This property sold 7 months ago and is no longer available for purchase.
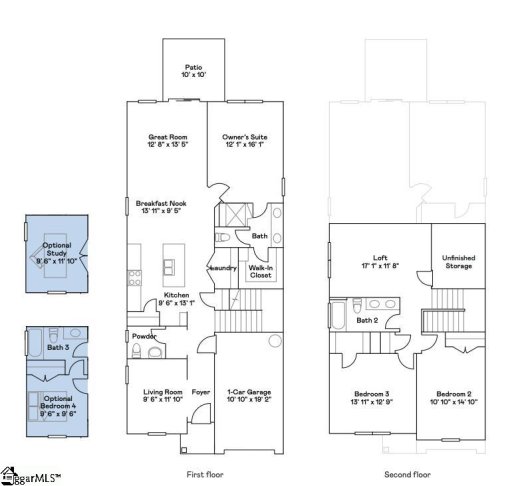
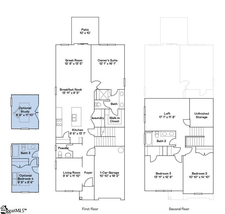
View active listings in Spring Park →The Edgefield floorplan at Spring Park community in Travelers Rest, South Carolina, offers a thoughtfully designed two-story layout that blends comfort, functionality, and modern living. With approximately 1,931 square feet, it includes three bedrooms, two and a half bathrooms, and a one-car garage. A standout feature is the first-floor owner’s suite, tucked privately at the back of the home with a walk-in closet and en-suite bath.
The main level also showcases an open-concept living area that connects the living room, kitchen, dining space, and a rear patio—ideal for entertaining or family gatherings. Upstairs, two secondary bedrooms share the space with a versatile loft that can function as an office, media room, or play area. Located just north of Greenville, the Spring Park community offers easy access to shopping, dining, and outdoor recreation like the Swamp Rabbit Trail, along with neighborhood features such as a dog park, fostering a vibrant and connected lifestyle.
GVL MLS # 1568333
Quick Facts
Time on Site
8 months ago
Property Type
Residential
Year Built
2025
Price/Sq.Ft.
$153
HOA Fees
$918/yr
Property Details
Schools
Features & Amenities
Features:
- High Ceilings
- Ceiling Smooth
- Tray Ceiling(s)
- Granite Counters
- Open Floorplan
- Walk-In Closet(s)
- Countertops – Quartz
- Pantry
Location & Map
Map View
Loading map...
Additional Information
Community
- Dog Park
Lot & Land
- 1/2 - Acre
- Corner Lot
Tax Information
Interior Details
- Vinyl
- Dishwasher
- Disposal
- Free-Standing Gas Range
- Gas Oven
- Microwave-Convection
- Tankless Water Heater
- 2nd Floor
- Electric Dryer Hookup
- High Ceilings
- Ceiling Smooth
- Tray Ceiling(s)
- Granite Counters
- Open Floorplan
- Walk-In Closet(s)
- Countertops – Quartz
- Pantry
- Gas Starter
- Ventless
Parking & Garage
- Attached
- Paved
- Side/Rear Entry
- Detached
Exterior Features
- Architectural
- Attached
- Paved
- Side/Rear Entry
- Detached
- Slab
- Porch
- Hardboard Siding
- Stone
H O A & Association
- Common Area Ins.
- Maintenance Structure
- Insurance
- Maintenance Grounds
- Pest Control
- Street Lights
- Trash
- Termite Contract
- By-Laws
- Restrictive Covenants
Property Overview
- Two
- Traditional
Utilities & Systems
- Public Sewer
- Damper Controlled
- Natural Gas
- Public
Listing Agent Information
The information is being provided by Greater Greenville MLS. Information deemed reliable but not guaranteed. Information is provided for consumers' personal, non-commercial use, and may not be used for any purpose other than the identification of potential properties for purchase. Copyright 2025 Greater Greenville MLS. All Rights Reserved.
You Might Also Like...
Interested in selling in Spring Park?


