




$208,500
213 Mountain Slope Court
About This Property
This Property Has Been Sold
This property sold 7 years ago and is no longer available for purchase.
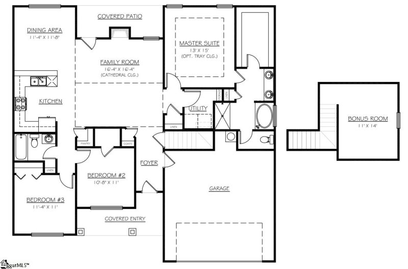
View active listings in Edgebrook →One of the LAST lots left in Edgebrook! This home features 3 BR plus a Bonus Room! Hardwood floors in entry, stone fireplace, flat-panel cabinetry, stainless steel appliances, covered patio, huge master closet, double sinks in master bath plus many more features.
Quick Facts
Time on Site
8 years ago
Property Type
Residential
Year Built
2017
Lot Size
15,245 sqft
Property Details
Schools
Features & Amenities
Location & Map
Map View
Loading map...
Additional Information
Agent Contacts
- Greenville: (864) 757-4000
- Simpsonville: (864) 881-2800
Community & H O A
Room Dimensions
Property Details
Exterior Features
- Stone
- Vinyl Siding
- Patio
- Porch-Front
- Porch-Other
- Sprklr In Grnd-Partial Yd
- Tilt Out Windows
- Vinyl/Aluminum Trim
- Windows-Insulated
Interior Features
- 1st Floor
- Walk-in
- Carpet
- Wood
- Vinyl
- Dishwasher
- Disposal
- Oven-Self Cleaning
- Oven-Electric
- Microwave-Built In
- Laundry
- Bonus Room/Rec Room
- Ceiling 9ft+
- Ceiling Fan
- Ceiling Cathedral/Vaulted
- Ceiling Smooth
- Smoke Detector
- Countertops-Other
- Countertops – Laminate
- Pantry – Walk In
Systems & Utilities
- Forced Air
- Natural Gas
Showing & Documentation
- Warranty Furnished
- House Plans
- Restric.Cov/By-Laws
- Termite Bond
- Show Anytime
- Lockbox-Electronic
- Copy Earnest Money Check
- Pre-approve/Proof of Fund
The information is being provided by Greater Greenville MLS. Information deemed reliable but not guaranteed. Information is provided for consumers' personal, non-commercial use, and may not be used for any purpose other than the identification of potential properties for purchase. Copyright 2025 Greater Greenville MLS. All Rights Reserved.
