




$408,308
137 Lumpkin Street
About This Property
This Property Has Been Sold
This property sold 3 years ago and is no longer available for purchase.
View active listings in The Rows at Pinestone →Welcome home to Pinestone, Travelers Rest's newest "Downtown North" location! Perfectly situated in the heart of the city is where you'll discover this one-of-a-kind walkable community with pedestrian access to Pinestone Park ON MAIN STREET, shopping, dining and the wildly popular Swamp Rabbit Trail. Born from a deep and trusted history within the Travelers Rest community, Pinestone Builders has emerged to provide quality homes and a pleasurable buying experience while being a good steward to the land that we are entrusted.
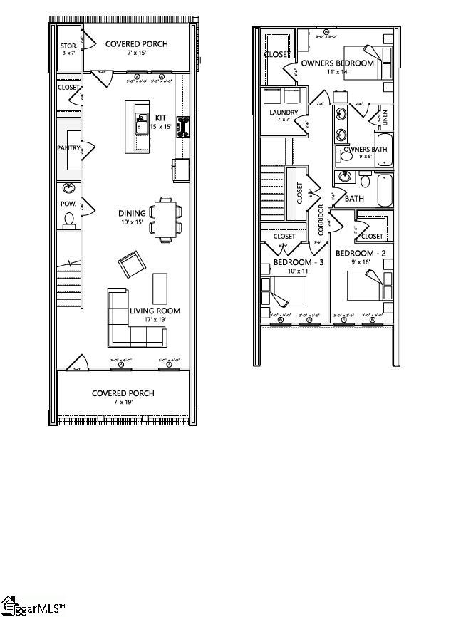
Some of the many included features are: 9 FT ceilings on the main floor, tankless hot water heater, quartz countertops and tile backsplash in kitchen, comfort height vanities and toilets, closet lighting, full yard irrigation and sod and James Hardie fiber cement siding. The Ashby is a 1707 SF, 2 story, master-up design with 3 bedrooms and 2.5 baths.
It also features covered porches in the front and back and 2-car detached garage. Homeowners can purchase a membership for The Standard at Pinestone pool and gym.
GVL MLS # 1490812
Quick Facts
Time on Site
3 years ago
Property Type
Residential
Year Built
2023
Lot Size
6,534 sqft
Property Details
Schools
Features & Amenities
Location & Map
Map View
Loading map...
Additional Information
Agent Contacts
- Greenville: (864) 757-4000
- Simpsonville: (864) 881-2800
Community & H O A
Room Dimensions
Property Details
- Level
- Sidewalk
Exterior Features
- Porch-Front
- Tilt Out Windows
- Sprklr In Grnd-Full Yard
Interior Features
- 2nd Floor
- Walk-in
- Dryer – Electric Hookup
- Carpet
- Ceramic Tile
- Laminate Flooring
- Dishwasher
- Disposal
- Cook Top-Electric
- Oven-Electric
- Microwave-Built In
- Attic
- Garage
- Cable Available
- Ceiling 9ft+
- Ceiling Smooth
- Countertops Granite
- Open Floor Plan
- Walk In Closet
- Pantry – Walk In
Systems & Utilities
Showing & Documentation
- Warranty Furnished
- Restric.Cov/By-Laws
- Termite Bond
- Appointment/Call Center
- Vacant
- Copy Earnest Money Check
- Pre-approve/Proof of Fund
- Specified Sales Contract
The information is being provided by Greater Greenville MLS. Information deemed reliable but not guaranteed. Information is provided for consumers' personal, non-commercial use, and may not be used for any purpose other than the identification of potential properties for purchase. Copyright 2025 Greater Greenville MLS. All Rights Reserved.
You Might Also Like...
Interested in selling in The Rows at Pinestone?


