

$530,900
113 Barred Owl Road
Travelers Rest, SC 29690
About This Property
This Property Has Been Sold
This property sold 5 months ago and is no longer available for purchase.
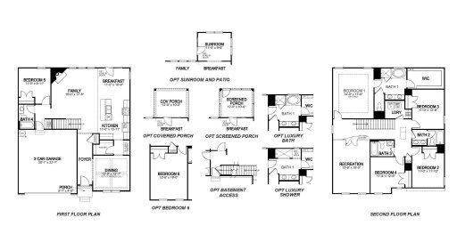
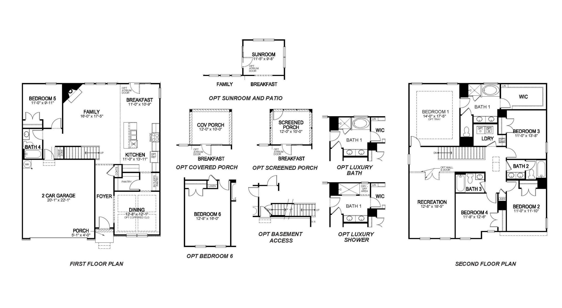
View active listings in Whitehawk Meadows →Check out 113 Barred Owl Road, a stunning new home! This spacious two-story home features five bedrooms, four bathrooms, and a two-car garage, providing ample space. Upon entering, you’ll be greeted by a grand foyer that leads into the heart of the home.
The open floor plan creates an airy and inviting atmosphere, with the living room connecting seamlessly to the kitchen and breakfast area. The chef’s kitchen is equipped with modern appliances, a large center island, ample storage space, and a pantry, making it perfect for both cooking and casual dining. Adjacent to the living room is a convenient bedroom on the main level.
The primary suite is a luxurious retreat, featuring an en-suite bathroom with dual vanities, an extra large shower, and a large walk-in closet. The additional bedrooms features privacy and comfort, sharing access to secondary bathrooms. A flexible recreational room provides endless possibilities for entertainment or relaxation.
SPN MLS # 323399
Quick Facts
Time on Site
11 months ago
Property Type
Residential
Year Built
2025
Lot Size
7,405 sqft
Price/Sq.Ft.
$181
Property Details
Schools
Features & Amenities
Features:
- Cable Available
- Ceilings-Some 9 Ft +
- Attic Stairs Pulldown
- Fireplace
- Walk-In Closet(s)
- Ceiling - Smooth
- Solid Surface Counters
- Open Floorplan
- Walk-In Pantry
- Radon Mitigation System
- Smart Home
Location & Map
Map View
Loading map...
Additional Information
Basement
Security
- Smoke Detector(s)
Community
- Common Areas
- Street Lights
- See Remarks
- Pool
- Sidewalks
Lot & Land
- Level
- Underground Utilities
Primary Suite
- Bath - Full
- Double Vanity
- Owner on 2nd level
- Shower Only
- Walk-in Closet
Interior Details
- Carpet
- Ceramic Tile
- Luxury Vinyl
- Gas Cooktop
- Dishwasher
- Disposal
- Microwave
- Gas Oven
- Self Cleaning Oven
- Wall Oven
- Insulated Windows
- 2nd Floor
- Electric Dryer Hookup
- Walk-In
- Cable Available
- Ceilings-Some 9 Ft +
- Attic Stairs Pulldown
- Fireplace
- Walk-In Closet(s)
- Ceiling - Smooth
- Solid Surface Counters
- Open Floorplan
- Walk-In Pantry
- Radon Mitigation System
- Smart Home
- Gas Log
New Construction
Parking & Garage
- 2 Car Attached
- Garage Door Opener
Exterior Features
- Architectural
- Attic
- Garage
- Aluminum/Vinyl Trim
- Slab
- Brick Veneer
- Hardboard Siding
- Stone
- Patio
H O A & Association
- See Remarks
- Pool
- Recreation Facility
- Street Lights
Property Overview
- One
- Traditional
Utilities & Systems
- Public Sewer
- Central Air
- Forced Air
- Gas
- Tankless
- Public
Listing Agent Information
You Might Also Like...
Interested in selling in Whitehawk Meadows?


