




$262,209
1 Trakas Court
Travelers Rest, SC 29690
About This Property
This Property Has Been Sold
This property sold 2 years ago and is no longer available for purchase.
View active listings in Wethington Place →Wethington Place is a masterplan community of new townhomes just minutes from downtown Greenville & 1 mile from downtown Travelers Rest. Wethington Place is just across the street from Trailblazer Park and Swamp Rabbit Trail! Enjoy a long bike ride on the trail, and then head over the main street for lunch!
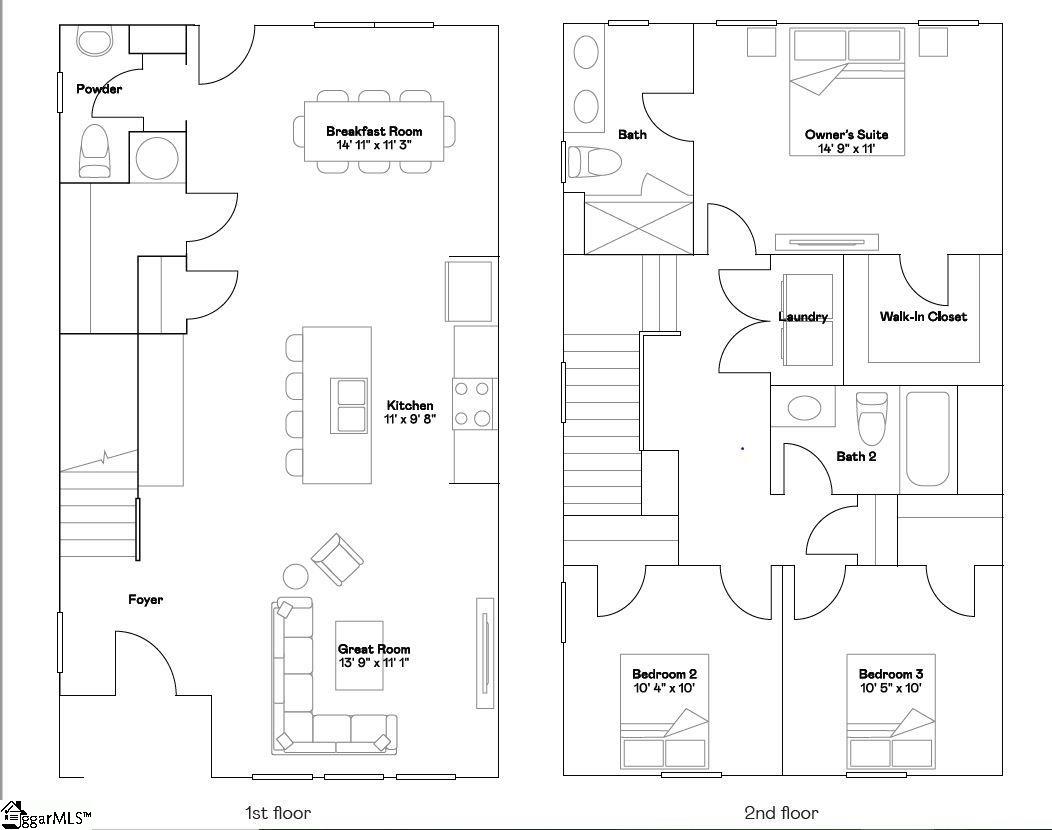
This two-story townhome has a generous floorplan that makes smart use of the space! The 1st floor is occupied by the common areas, which include an open Great Room, a kitchen with stainless steel appliances, and a large breakfast/dining area with backyard access and views of the outdoors. Upstairs is the serene owner’s suite with a large walk-in closet, while down the hallway are two secondary bedrooms arranged near a full-sized bathroom.
GVL MLS # 1503509
Quick Facts
Time on Site
3 years ago
Property Type
Residential
Year Built
2023
Lot Size
1,825 sqft
HOA Fees
$165/mo
Property Details
Schools
Features & Amenities
Features:
- High Ceilings
- Ceiling Smooth
- Granite Counters
- Open Floorplan
- Walk-In Closet(s)
- Countertops – Quartz
Location & Map
Map View
Loading map...
Additional Information
Community
- Common Areas
- Sidewalks
- Lawn Maintenance
- Landscape Maintenance
Lot & Land
- 1/2 Acre or Less
Tax Information
Interior Details
- Carpet
- Vinyl
- Dishwasher
- Disposal
- Free-Standing Gas Range
- Electric Oven
- Microwave
- Microwave-Convection
- Electric Water Heater
- 2nd Floor
- Laundry Room
- High Ceilings
- Ceiling Smooth
- Granite Counters
- Open Floorplan
- Walk-In Closet(s)
- Countertops – Quartz
Parking & Garage
- Paved
- Other
- Driveway
Exterior Features
- Architectural
- Paved
- Other
- Driveway
- Slab
- Front Porch
- Hardboard Siding
H O A & Association
- Common Area Ins.
- Maintenance Structure
- Insurance
- Maintenance Grounds
- Pest Control
- Street Lights
- Termite Contract
- By-Laws
- Parking
Property Overview
- Two
- Traditional
Utilities & Systems
- Electric
- Damper Controlled
- Natural Gas
- Sewer Available
- Water Available
Listing Agent Information
The information is being provided by Greater Greenville MLS. Information deemed reliable but not guaranteed. Information is provided for consumers' personal, non-commercial use, and may not be used for any purpose other than the identification of potential properties for purchase. Copyright 2025 Greater Greenville MLS. All Rights Reserved.
You Might Also Like...
Interested in selling in Wethington Place?


