




$589,000
6 Gerru Court
Taylors, SC 29687
About This Property
This Property Has Been Sold
This property sold 4 years ago and is no longer available for purchase.
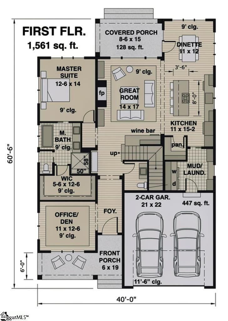
View active listings in Waters Edge →The elegant and stylish façade of this 2-story, 2889 sq ft Modern Farmhouse is a real eye-catcher! With 4 bedrooms, 3 ½ bathrooms and a desirable front loading 3-car garage, you’ll have plenty of space to move and grow. Energy efficiency is yours with an encapsulated crawl space foundation.
Step in to the foyer and you’ll have access to the office/den on the left and sight lines through the great room to the rear covered porch in front of you. The great room is the perfect place to relax in front of the large cozy fireplace. The great room opens to the kitchen/dinette area.
In the kitchen is a generous island with built-in range and seating for 4. Numerous cabinets and a walk-in pantry only steps from the garage make storage and organizing a breeze! The dinette area has two large windows and access to the rear porch, allowing for lots of natural light.
GVL MLS # 1456343
Quick Facts
Time on Site
4 years ago
Property Type
Residential
Year Built
2021
Lot Size
26,136 sqft
HOA Fees
$35/yr
Property Details
Schools
Features & Amenities
Features:
- High Ceilings
- Ceiling Fan(s)
- Ceiling Smooth
- Open Floorplan
- Walk-In Closet(s)
- Countertops – Quartz
- Pantry
Location & Map
Map View
Loading map...
Additional Information
Community
- Common Areas
Lot & Land
- 1/2 - Acre
- Sprklr In Grnd-Partial Yd
- Interior Lot
Tax Information
Interior Details
- Carpet
- Ceramic Tile
- Other
- Dishwasher
- Disposal
- Self Cleaning Oven
- Electric Oven
- Free-Standing Electric Range
- Microwave
- Electric Water Heater
- Sink
- 1st Floor
- Walk-in
- Electric Dryer Hookup
- Laundry Room
- High Ceilings
- Ceiling Fan(s)
- Ceiling Smooth
- Open Floorplan
- Walk-In Closet(s)
- Countertops – Quartz
- Pantry
- Gas Log
Parking & Garage
- Attached
- Parking Pad
- Paved
Exterior Features
- Architectural
- Attached
- Parking Pad
- Paved
- Crawl Space
- Front Porch
- Porch
- Concrete
H O A & Association
Property Overview
- Two
- Other
Utilities & Systems
- Septic Tank
- Central Air
- Electric
- Electric
- Forced Air
- Underground Utilities
- Cable Available
- Public
Listing Agent Information
The information is being provided by Greater Greenville MLS. Information deemed reliable but not guaranteed. Information is provided for consumers' personal, non-commercial use, and may not be used for any purpose other than the identification of potential properties for purchase. Copyright 2025 Greater Greenville MLS. All Rights Reserved.
You Might Also Like...
Interested in selling in Waters Edge?


