


$269,900
420 Blissful Court
Taylors, SC 29687
About This Property
This Property Has Been Sold
This property sold 3 months ago and is no longer available for purchase.
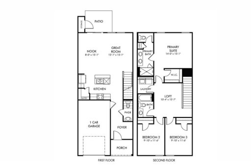
View active listings in Northbrook Village Townes →Brand new, energy-efficient home available by Oct 2025! Invite friends over to watch the big game in the spacious second-story loft. The primary suite features dual sinks and a large walk-in closet.
Downstairs, the kitchen island overlooks the great room and dining area. Now selling in Taylors, Northbrook Village Townes will feature 1- and 2-car garage townhomes, complete with a firepit and a dog park. Located just minutes from downtown Greenville, you'll have easy access to shopping, dining, and the Swamp Rabbit Trail.
With low monthly payments and a straightforward buying process, Northbrook Village Townes offers an affordable pathway to your dream home. Each of our homes is built with innovative, energy-efficient features designed to help you enjoy more savings, better health, real comfort and peace of mind.
SPN MLS # 329501
Quick Facts
Time on Site
6 months ago
Property Type
Residential
Year Built
2025
Lot Size
2,178 sqft
Price/Sq.Ft.
$169
Property Details
Schools
Features & Amenities
Features:
- Attic Stairs Pulldown
- Walk-In Closet(s)
- Ceiling - Smooth
- Solid Surface Counters
Location & Map
Map View
Loading map...
Additional Information
Basement
Lot & Land
- Level
- Some Trees
Primary Suite
- Double Vanity
- Tub/Shower
- Walk-in Closet
Interior Details
- Carpet
- Ceramic Tile
- Vinyl
- Dishwasher
- Disposal
- Dryer
- Microwave
- Free-Standing Range
- Refrigerator
- Washer
- Attic Stairs Pulldown
- Walk-In Closet(s)
- Ceiling - Smooth
- Solid Surface Counters
New Construction
Parking & Garage
Exterior Features
- Composition
- Slab
- Vinyl Siding
- Patio
Property Overview
- Two
- Craftsman
Utilities & Systems
- Public Sewer
- Central Air
- Heat Pump
- Available
Listing Agent Information
You Might Also Like...
Interested in selling in Northbrook Village Townes?


