




$276,999
300 Paneer Lane
Taylors, SC 29651
About This Property
This Property Has Been Sold
This property sold 1 year ago and is no longer available for purchase.
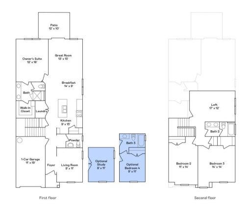
View active listings in Blue Ridge Plantation Lakeside →Nestled along Lake Robinson this stunning townhome features beautiful crisp white shaker cabinets, tile backsplash, stainless steel appliances and gas stove. Everyone will want to gather round the large quartz island for food, fun and interaction. Entertaining is a delight as the kitchen is open to the breakfast room and spacious great room.
At the end of the day you can retreat to the lushness and splendor of your primary suite with soaring ceilings and spa-like en suite. Enjoy working from your home office as the sunlight glistens in and illuminates the room. Upstairs offers a loft with entertaining area for game night, lazy day movies or children's play area.
Accompany the loft is two bedrooms and a full bathroom. No need to worry about storage with a large 8X10 storage area adjacent the loft. Imagine yourself basking in the summer sun or taking a dip in the pool while admiring the magnificent mountain views.
SPN MLS # 315121
Quick Facts
Time on Site
2 years ago
Property Type
Residential
Year Built
2024
Lot Size
2,178 sqft
Price/Sq.Ft.
$140
Property Details
Schools
Features & Amenities
Features:
- Cable Available
- High Ceilings
- Walk-In Closet(s)
- Ceiling - Smooth
- Solid Surface Counters
- Open Floorplan
- Pantry
Location & Map
Map View
Loading map...
Additional Information
Basement
Community
- Common Areas
- Street Lights
- Pool
- Sidewalks
- Lawn
Lot & Land
- Underground Utilities
Primary Suite
- Double Vanity
- Bath - Full
- Shower Only
- Walk-in Closet
- Owner on Main Level
Interior Details
- Carpet
- Luxury Vinyl
- Dishwasher
- Disposal
- Free-Standing Range
- Microwave
- Gas Range
- Breakfast Area
- Loft
- Office/Study
- Tilt-Out
- 1st Floor
- Laundry Closet
- Electric Dryer Hookup
- Multiple Hookups
- Cable Available
- High Ceilings
- Walk-In Closet(s)
- Ceiling - Smooth
- Solid Surface Counters
- Open Floorplan
- Pantry
New Construction
Parking & Garage
- Attached
- Garage Door Opener
Exterior Features
- Architectural
- Slab
- HardiPlank Type
- Stone
- Patio
H O A & Association
- Common Area
- Lawn Service
- Pool
- Street Lights
- Termite Control
Property Overview
- Two
- Craftsman
Utilities & Systems
- Public Sewer
- Central Air
- Forced Air
- Public
Listing Agent Information
You Might Also Like...
Interested in selling in Blue Ridge Plantation Lakeside?


