




$2,450,000
Lot 10 Laurel Pond Way
Sunset, SC 29685
About This Property
Nestled within Old Edwards Reserve at Lake Keowee, the new Laurel Village Cottages offer a rare opportunity to own in one of the community’s most desirable locations—marking the first real estate release in nearly two decades. Limited to just 24 homes, this exclusive enclave is thoughtfully centered around an 18,000-square-foot private putting course and designed to blend privacy, recreation, and resort-style living.
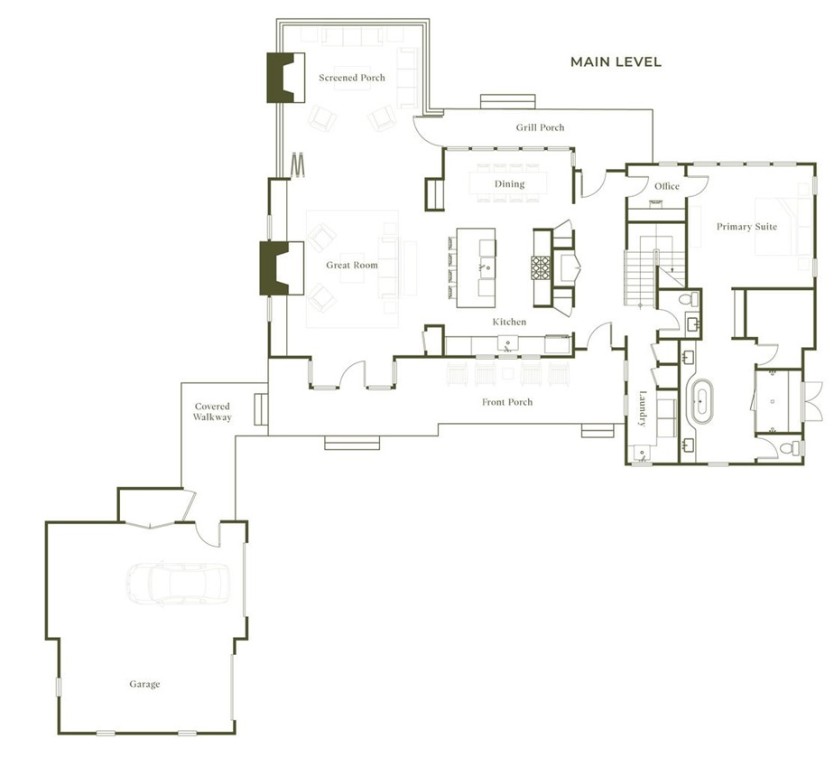
The cottages come in three elegant floor plans—Aberdeen, Dornoch, and Prestwick—ranging from approximately 2173 to 3,008 heated square feet. Each design features spacious interiors with three to four bedrooms, open-concept living areas, and premium finishes. Highlights include screened porches with fireplaces, grilling porches, detached two-car garages, and fully landscaped yards—making each home ideal for both quiet retreats and effortless entertaining. Interiors are filled with natural light and showcase the refined mountain-lake architectural aesthetic that defines The Reserve.
Located just above Laurel Pond and within a short golf cart ride to the Village center, Orchard House, marina, and the Jack Nicklaus Signature Golf Course, Laurel Village offers convenience alongside tranquility. At its heart is a lush putting green—perfect for relaxed practice sessions or friendly competition among neighbors.
WUM MLS # 1118750306
Quick Facts
Time on Site
9 months ago
Property Type
Residential
Year Built
2026
Lot Size
12,632 sqft
Property Details
Schools
Features & Amenities
Location & Map
Map View
Loading map...
Additional Information
Lot & Land
- CornerLot
- Level
- OutsideCityLimits
- OnGolfCourse
- Subdivision
Community & H O A
- CommonGroundsArea
- Clubhouse
- FitnessCenter
- Golf
- Gated
- Pool
- StorageFacilities
- TennisCourts
- TrailsPaths
Tax Information
Parking & Garage
- Detached
- Garage
- GarageDoorOpener
Property Details
Exterior Features
- Composition
- Shingle
- FrontPorch
- Porch
- Screened
- Brick
- CementSiding
Interior Features
- Hardwood
- Tile
- Dryer
- Dishwasher
- ElectricWaterHeater
- Microwave
- Range
- Refrigerator
- Washer
- DualSinks
- Fireplace
- GardenTubRomanTub
- HighCeilings
- BathInPrimaryBedroom
- MainLevelPrimary
- QuartzCounters
- SmoothCeilings
- SeparateShower
- WalkInClosets
Systems & Utilities
- CentralAir
- Electric
- Central
- Electric
Listing Agent Information
This information is deemed reliable, but not guaranteed. Neither, the Western Upstate Association of REALTORS®, Inc. or Western Upstate Multiple Listing Service of South Carolina Inc., nor the listing broker, nor their agents or subagents are responsible for the accuracy of the information. The buyer is responsible for verifying all information. This information is provided by the Western Upstate Association of REALTORS®, Inc. and Western Upstate Multiple Listing Service of South Carolina, Inc. for use by its members and is not intended for the use for any other purpose. Information is provided for consumers' personal, non-commercial use, and may not be used for any purpose other than the identification of potential properties for purchase. The data relating to real estate for sale on this Web site comes in part from the Broker Reciprocity Program of the Western Upstate Association of REALTORS®, Inc. and the Western Upstate Multiple Listing Service, Inc.

