




$502,850
815 Bethesda Road
Statesville, NC 28677
About This Property
This Property Has Been Sold
This property sold 1 year ago and is no longer available for purchase.
View active listings in Northlake →Free Refinancing - No Lender Fees for Two Years Buy Now Risk Free, no need to wait for lower rates! 1/0 buydown FC 2.99% Yr1 3.
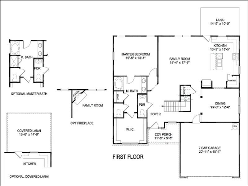
99% Yr 2-30 FHA/VA/USDA 30 Year Financing available OR up to $15,000 Flex Cash to buy down the interest rate PLUS we always pay closing costs with no limit, except for points and pre-paids, with the use of one of our preferred lenders. This brand new Two Story Craftsman floorplan boasts 3 bedrooms, Office, Den and Flex room can be 4th, 5th & 6th bedroom and 3.5 baths.
The inviting fireplace is the heart of the open floorplan, and the kitchen shines with granite countertops & tiled backsplash. Enjoy a charming front porch and a 16' X 14' covered rear deck on the exceptionally large .71 acre homesite, ideal for outdoor gatherings.
CAR MLS # 117752302
Quick Facts
Time on Site
2 years ago
Property Type
Residential
Year Built
2024
Price/Sq.Ft.
$161
Property Details
Schools
Features & Amenities
Features:
- Attic Stairs Pulldown
- Cable Prewire
- Entrance Foyer
- Kitchen Island
- Open Floorplan
- Walk-In Closet(s)
- Walk-In Pantry
Location & Map
Map View
Loading map...
Additional Information
Utilities
- Septic Installed
- Cable Available
- Electricity Connected
- Fiber Optics
- Underground Power Lines
- County Water
Lot And Land
Pool And Spa
- Outdoor Pool – Community
Agent Contacts
- Palmetto Park Realty Team Fort Mill: 803.548.6123
Interior Details
- Heat Pump
- Carpet
- Laminate
- Tile
- Insulated Door(s)
- Insulated Window(s)
- Electric Dryer Hookup
- Laundry Closet
- Laundry Room
- Upper Level
- Washer Hookup
- Attic Stairs Pulldown
- Cable Prewire
- Entrance Foyer
- Kitchen Island
- Open Floorplan
- Walk-In Closet(s)
- Walk-In Pantry
- Carbon Monoxide Detector(s)
- Smoke Detector(s)
- Family Room
Exterior Features
- Shingle
- Stone
- Vinyl
- Covered
- Deck
- Front Porch
Parking And Garage
- Driveway
- Garage Faces Side
Waterfront And View
- Covered structure
- Boat Slip – Community
- Pier - Community
Financial Information
Dwelling And Structure
- Two or More Access Exits
- Bath Lever Faucets
- Lever Door Handles
Basement And Foundation
- Crawl Space
Zoning And Restrictions
Square Footage And Levels
- Two
Additional C A R Information
IDX information is provided exclusively for consumers' personal, non-commercial use only; it may not be used for any purpose other than to identify prospective properties consumers may be interested in purchasing. Data is deemed reliable but is not guaranteed accurate by the MLS GRID. Use of this site may be subject to an end user license agreement. Based on information submitted to the MLS GRID as of Tue, Nov 26, 2024. All data is obtained from various sources and may not have been verified by broker or MLS GRID. Supplied Open House Information is subject to change without notice. All information should be independently reviewed and verified for accuracy. Properties may or may not be listed by the office/agent presenting the information. Some IDX listings have been excluded from this website. Any use by you of search facilities of data on the site, other than by a consumer looking to purchase real estate, is prohibited. DMCA Notice: Palmetto Park Realty respects the intellectual property rights of others. If you believe that your work has been copied in a way that constitutes copyright infringement, please provide our designated agent with written notice containing the following information: (1) identification of the copyrighted work claimed to have been infringed; (2) identification of the material that is claimed to be infringing; (3) your contact information; (4) a statement that you have a good faith belief that use of the material is not authorized; and (5) a statement that the information in the notification is accurate and you are authorized to act on behalf of the copyright owner. Please send DMCA notices to: [email protected]
You Might Also Like...
Interested in selling in Northlake?