




$399,900
230 Mountain Island Drive
Statesville, NC 28677
About This Property
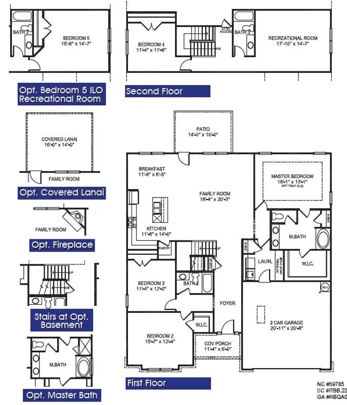
Quick move-in with Special Financing & Interest rate options available. This 2604 1.5 story floor plan boast almost a half acre.
Key features include: 9-foot ceilings throughout, recessed lighting, a cozy fireplace in the living area, stainless steel appliances, Quartz countertops with an open concept design, Drop Zone and 16 x 14 covered rear deck. The primary bedroom is on the main floor offers tray ceilings and an ensuite with double sinks and a ceramic tiled stand up shower. The upstairs provides ample space with a huge recreational room, bedroom and full bathroom.
Enjoy the community's amenities, including a pool, walking trail, and a private 10-acre lake. All this for just $179 per square foot. This home is conveniently located just minutes from HWY 77, offering quick access to Mooresville, Statesville, and Charlotte.
CAR MLS # 277709701
Quick Facts
Time on Site
10 months ago
Property Type
Residential
Year Built
2025
Price/Sq.Ft.
$154
Property Details
Schools
Features & Amenities
Features:
- Attic Walk In
- Breakfast Bar
- Drop Zone
- Kitchen Island
- Open Floorplan
- Pantry
- Split Bedroom
- Storage
- Walk-In Closet(s)
- Walk-In Pantry
Location & Map
Map View
Loading map...
Additional Information
Utilities
- Private Sewer
- County Water
Lot And Land
Agent Contacts
- Palmetto Park Realty Team Fort Mill: 803.548.6123
Interior Details
- Electric
- Heat Pump
- Carpet
- Tile
- Vinyl
- Insulated Door(s)
- Insulated Window(s)
- Electric Dryer Hookup
- Laundry Room
- Main Level
- Attic Walk In
- Breakfast Bar
- Drop Zone
- Kitchen Island
- Open Floorplan
- Pantry
- Split Bedroom
- Storage
- Walk-In Closet(s)
- Walk-In Pantry
- Carbon Monoxide Detector(s)
- Smoke Detector(s)
- Gas Log
- Great Room
Exterior Features
- Architectural Shingle
- Stone Veneer
- Vinyl
- Covered
- Deck
- Rear Porch
Parking And Garage
- Attached Garage
- Garage Faces Front
Financial Information
Dwelling And Structure
- Ranch
Basement And Foundation
- Crawl Space
Zoning And Restrictions
Square Footage And Levels
- Two
Additional C A R Information
IDX information is provided exclusively for consumers' personal, non-commercial use only; it may not be used for any purpose other than to identify prospective properties consumers may be interested in purchasing. Data is deemed reliable but is not guaranteed accurate by the MLS GRID. Use of this site may be subject to an end user license agreement. Based on information submitted to the MLS GRID as of Fri, Mar 6, 2026. All data is obtained from various sources and may not have been verified by broker or MLS GRID. Supplied Open House Information is subject to change without notice. All information should be independently reviewed and verified for accuracy. Properties may or may not be listed by the office/agent presenting the information. Some IDX listings have been excluded from this website. Any use by you of search facilities of data on the site, other than by a consumer looking to purchase real estate, is prohibited. DMCA Notice: Palmetto Park Realty respects the intellectual property rights of others. If you believe that your work has been copied in a way that constitutes copyright infringement, please provide our designated agent with written notice containing the following information: (1) identification of the copyrighted work claimed to have been infringed; (2) identification of the material that is claimed to be infringing; (3) your contact information; (4) a statement that you have a good faith belief that use of the material is not authorized; and (5) a statement that the information in the notification is accurate and you are authorized to act on behalf of the copyright owner. Please send DMCA notices to: [email protected]