




$202,499
Modern Townhome in Hadden Heights | 3 Bed, 2 Bath, Garage
Spartanburg, SC 29301
About This Property
This Property Has Been Sold
This property sold 7 months ago and is no longer available for purchase.
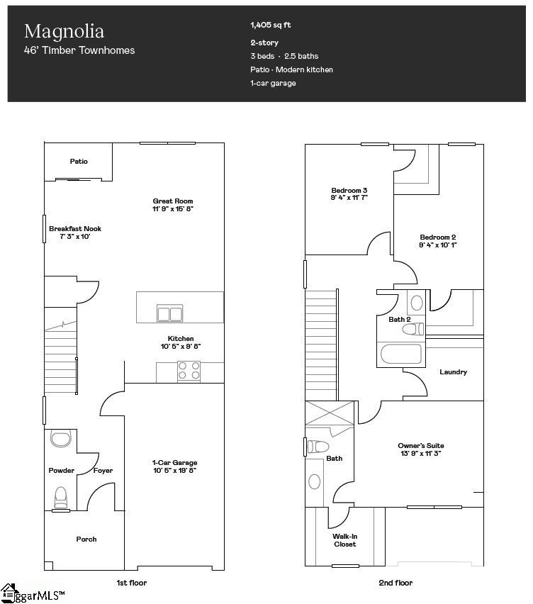
View active listings in Hadden Heights →Welcome to Hadden Heights, Lennar's newest townhouse community in Spartanburg! We are thrilled to introduce you to the Magnolia floorplan, which boasts a generous 1423 square feet of living space. You will have a 2 car parking pad, and 1 car garage.
As you step inside, you'll be greeted by an open-concept first floor featuring a spacious great room with vinyl flooring that seamlessly flows into your main kitchen and breakfast area. The kitchen is a chef's delight, complete with quartz countertops, a stylish tile backsplash, and modern stainless-steel appliances. Imagine spending tranquil afternoons on your back porch, which comes with vinyl privacy fences for that added sense of seclusion and peace.
Heading upstairs, you'll discover a luxurious primary bedroom equipped with a dual vanity sink, a walk-in shower, and a spacious walk-in closet. Home also features a tankless water heater. The upper floor is also home to two additional bedrooms, a full bath, and a conveniently located laundry room, ensuring all your needs are met.
GVL MLS # 1558553
Quick Facts
Time on Site
10 months ago
Property Type
Residential
Price/Sq.Ft.
$144
Property Details
Schools
Features & Amenities
Location & Map
Map View
Loading map...
Additional Information
Agent Contacts
- Greenville: (864) 757-4000
- Simpsonville: (864) 881-2800
Community & H O A
Room Dimensions
Property Details
Exterior Features
- Stone
- Vinyl Siding
- Tilt Out Windows
- Vinyl/Aluminum Trim
Interior Features
- 2nd Floor
- Walk-in
- Carpet
- Luxury Vinyl Tile/Plank
- Cook Top-Gas
- Dishwasher
- Oven-Gas
- Microwave-Built In
- Attic
- Garage
- Ceiling Smooth
- Countertops-Solid Surface
- Walk In Closet
- Countertops – Quartz
Systems & Utilities
- Central Forced
- Electric
- Forced Air
- Natural Gas
Showing & Documentation
- Warranty Furnished
- Restric.Cov/By-Laws
- Survey
- List Agent Present
- Call Listing Office/Agent
- Pre-approve/Proof of Fund
- Specified Sales Contract
The information is being provided by Greater Greenville MLS. Information deemed reliable but not guaranteed. Information is provided for consumers' personal, non-commercial use, and may not be used for any purpose other than the identification of potential properties for purchase. Copyright 2025 Greater Greenville MLS. All Rights Reserved.
You Might Also Like...
Interested in selling in Hadden Heights?

