




$399,900
Rare ALL BRICK Home with Dual Masters & SC Lifestyle Amenities
Spartanburg, SC 29301
About This Property
This Property Has Been Sold
This property sold 9 months ago and is no longer available for purchase.
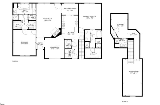
View active listings in Rock Springs →Must see this ALL BRICK 3-bedroom, (DUAL MASTER BEDROOMS with DUAL MASTER BATHROOMS ON THE MAIN FLOOR), 3.5 bath home with FLEX SPACE, screened-in porch, deck and scenic backyard located in the COVETED GARDENS at Rock Springs! Homes in the The GARDENS at Rock Springs rarely come available and are sought-after because they have their homeowners yard maintenance and irrigation for easy living!
This home has upgrades such as beautiful REAL hardwood floors that flank almost the entire first floor, a Generac-whole home generator, 2 master bedrooms/bathrooms, secondary living area with full bathroom & FLEX SPACE, fireplace, and multiple trey and vaulted ceilings! The foyer leads into the impressive formal dining room that boasts 12 ft ceilings and has decorative chair molding. The spacious living room has a gas fireplace with decorative moldings to showcase fireplace.
To the left of the home is ONE of the two master bedrooms on the main floor. It has trey ceiling, TWO separate closets, separate vanities, soaker tub, separate shower, and water closet. The home offers a split bedroom plan for plenty of privacy between BOTH MASTER SUITES.
GVL MLS # 1557713
Quick Facts
Time on Site
11 months ago
Property Type
Residential
Year Built
2003
Lot Size
8,276 sqft
Price/Sq.Ft.
$154
HOA Fees
$168/mo
Property Details
Schools
Features & Amenities
Features:
- 2 Story Foyer
- High Ceilings
- Ceiling Fan(s)
- Vaulted Ceiling(s)
- Ceiling Smooth
- Tray Ceiling(s)
- Granite Counters
- Countertops-Solid Surface
- Open Floorplan
- Soaking Tub
- Walk-In Closet(s)
- In-Law Floorplan
- Split Floor Plan
Location & Map
Map View
Loading map...
Additional Information
Community
- Common Areas
- Street Lights
- Recreational Path
- Playground
- Pool
- Sidewalks
- Lawn Maintenance
- Landscape Maintenance
- Walking Trails
Lot & Land
- 1/2 Acre or Less
- Cul-De-Sac
- Few Trees
- Sprklr In Grnd-Partial Yd
Tax Information
Interior Details
- Carpet
- Wood
- Laminate
- Cooktop
- Dishwasher
- Disposal
- Dryer
- Convection Oven
- Oven
- Electric Cooktop
- Electric Oven
- Microwave
- Gas Water Heater
- 1st Floor
- Laundry Closet
- Electric Dryer Hookup
- Washer Hookup
- Laundry Room
- 2 Story Foyer
- High Ceilings
- Ceiling Fan(s)
- Vaulted Ceiling(s)
- Ceiling Smooth
- Tray Ceiling(s)
- Granite Counters
- Countertops-Solid Surface
- Open Floorplan
- Soaking Tub
- Walk-In Closet(s)
- In-Law Floorplan
- Split Floor Plan
- Gas Log
Parking & Garage
- Attached
- Paved
- Concrete
- Garage Door Opener
- Side/Rear Entry
- Key Pad Entry
- Driveway
Exterior Features
- Architectural
- Attached
- Paved
- Concrete
- Garage Door Opener
- Side/Rear Entry
- Key Pad Entry
- Driveway
- Crawl Space
- Screened
- Deck
- Front Porch
- Rear Porch
- Brick Veneer
H O A & Association
- Electricity
- Maintenance Grounds
- Street Lights
- Yard Irrigation
Property Overview
- One and One Half
- Traditional
Utilities & Systems
- Public Sewer
- Electric
- Multi Units
- Electric
- Multi-Units
- Natural Gas
- Heat Pump
- Underground Utilities
- Public
Listing Agent Information
The information is being provided by Greater Greenville MLS. Information deemed reliable but not guaranteed. Information is provided for consumers' personal, non-commercial use, and may not be used for any purpose other than the identification of potential properties for purchase. Copyright 2025 Greater Greenville MLS. All Rights Reserved.
You Might Also Like...
Interested in selling in Rock Springs?


