




$238,999
591 Wooden Duck Street
Spartanburg, SC 29303
About This Property
This Property Has Been Sold
This property sold 2 years ago and is no longer available for purchase.
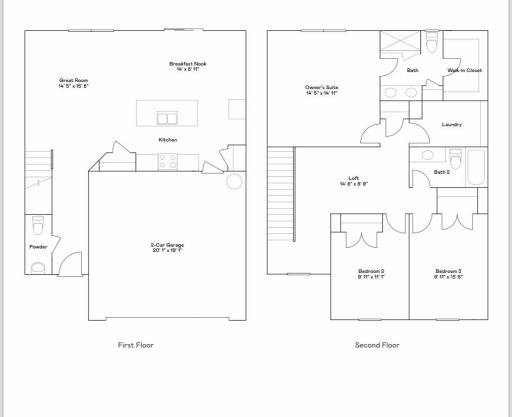
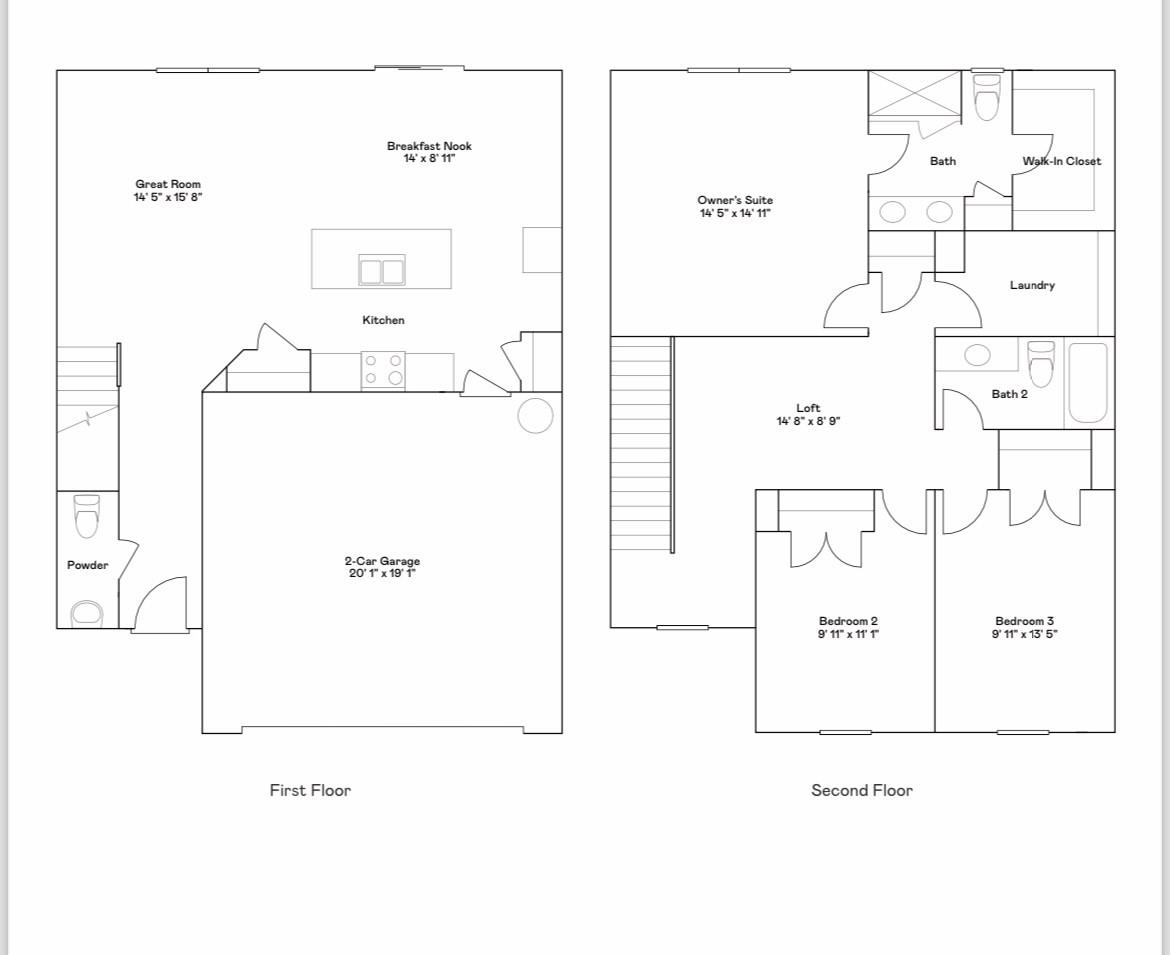
View active listings in Shoally Brook →This cozy and cute craftsman style plan features a great size kitchen with large quartz island great for all those home cooked meals. Open to the great room it is also great for entertaining or just a relaxing evening at home with the family. EVP flooring throughout the main floor, tile backsplash and stainless appliances complete the kitchen.
Upstairs you will find a lovely owners' suite with double sinks, shower and walk in closet. The laundry room is conveniently located upstairs with 2 additional bedrooms, full bath and a loft for additional entertaining space. Ask agent for buyer incentives.
SPN MLS # 307859
Quick Facts
Time on Site
2 years ago
Property Type
Residential
Year Built
2024
Lot Size
4,791 sqft
Price/Sq.Ft.
$144
Property Details
Schools
Features & Amenities
Features:
- Attic Stairs Pulldown
- Ceiling - Smooth
- Solid Surface Counters
- Open Floorplan
- Split Bedroom Plan
- Pantry
Location & Map
Map View
Loading map...
Additional Information
Basement
Security
- Smoke Detector(s)
Lot & Land
- Underground Utilities
Primary Suite
- Bath - Full
- Double Vanity
- Owner on 2nd level
- Shower Only
- Walk-in Closet
Interior Details
- Carpet
- Vinyl
- Dishwasher
- Disposal
- Microwave
- Free-Standing Range
- 2nd Floor
- Walk-In
- Attic Stairs Pulldown
- Ceiling - Smooth
- Solid Surface Counters
- Open Floorplan
- Split Bedroom Plan
- Pantry
Parking & Garage
- 2 Car Attached
Exterior Features
- Composition
- Slab
- Vinyl Siding
H O A & Association
Property Overview
- Two
- Craftsman
Utilities & Systems
- Public Sewer
- Central Air
- Forced Air
- Public
Listing Agent Information
You Might Also Like...
Interested in selling in Shoally Brook?


