

Gentry Place
1/2
$187k
Gentry Place
SOLD
$187k
$186,800
Sold: $186,800
449 Ward Thomas Way
Spartanburg, SC 29301
2Beds
1Baths
844Sq Ft
2025Built
About This Property
This Property Has Been Sold
This property sold 9 months ago and is no longer available for purchase.
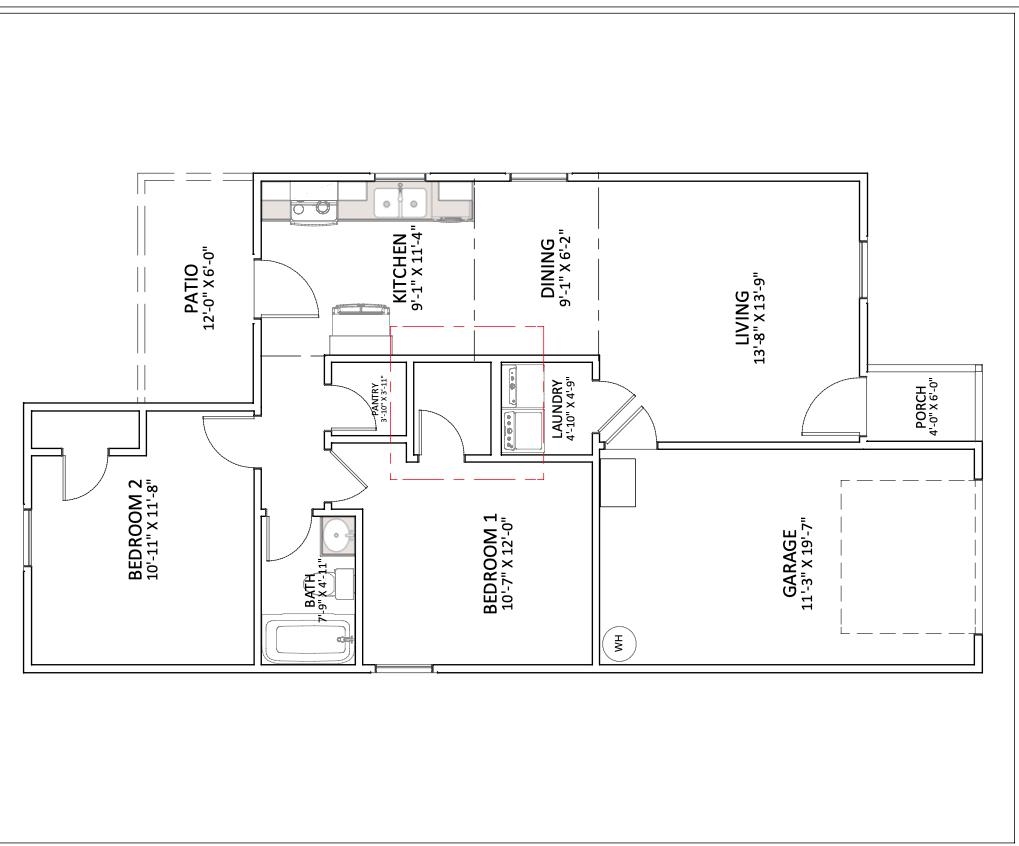
View active listings in Gentry Place →The Kline floor plan is a 2 bedroom, 1 bathroom single story home with 1 car garage. Standard features include Walk in Laundry, Luxury vinyl plank flooring in kitchen, dining and wet areas, Concrete back patio, and fully sodded yard! Great opportunity at a great price!
SPN MLS # 322641
Quick Facts
Time on Site
11 months ago
Property Type
Residential
Year Built
2025
Lot Size
6,534 sqft
Price/Sq.Ft.
$221
Property Details
Bedrooms:
2
Bathrooms:
1
Living Area:
844 SqFt
Total Area:
844 SqFt
Sub-Type:
SingleFamilyResidence
Schools
Elementary:
Fairforest
Middle:
Fair Forest
High:
Dorman High
School assignments may change. Contact the school district to confirm.
Features & Amenities
Location & Map
Map View
Loading map...
Additional Information
Basement
Finished Sq Ft Below Grade
0
Security
Security Features
- Smoke Detector(s)
Lot & Land
Lot Features
- Level
Lot Size ( Acres)
0.15
Primary Suite
Features
- Bath - Full
- Owner on Main Level
Interior Details
Flooring
- Carpet
- Luxury Vinyl
Appliances
- Dishwasher
- Disposal
- Cooktop
- Electric Cooktop
- Electric Oven
- Self Cleaning Oven
- Microwave
Specialty Rooms
Main Fl Master Bedroom
Window Features
- Tilt-Out
Laundry Features
- 1st Floor
- Washer Hookup
- Electric Dryer Hookup
Interior Features
- Ceiling Fan(s)
- Cable Available
- Walk-In Closet(s)
- Laminate Counters
- Open Floorplan
New Construction
Model
Duncan
Builder
Enchanted Homes
Est. Completion
2025-05-30
Parking & Garage
Garage Spaces
0
Parking Features
- Attached
- Garage
- Garage Door Opener
- Driveway
Exterior Features
Roof
- Architectural
Storage
Attic
Driveway
Paved-Concrete
Exterior Features
- Aluminum/Vinyl Trim
Foundation Details
- Slab
Construction Materials
- Vinyl Siding
Patio & Porch Features
- Patio
H O A & Association
Fee Frequency
Annually
Mandatory H O A
Yes
Association Fee
200
Property Overview
County
Spartanburg
Levels
- One
Subdivision
Gentry Place
Approximate Age
Under Construction
School District
6 Sptbg Co
Architectural Style
- Craftsman
Main Level Bedrooms
2
Main Level Bathrooms
1
Utilities & Systems
Sewer
- Public Sewer
Cooling
- Heat Pump
Heating
- Heat Pump
Cooling Fuel
Electricity
Heating Fuel
Electricity
Water Heater
Electric
Water Source
- Public
Water Company
SJWD
Garbage Pickup
Private
Electric Company
Duke
Listing Agent Information
Listing Courtesy
Joshua Allen of Cornerstone Real Estate Group
Request Showing From Palmetto Park Realty Team
Spartanburg: (864) 757-4000
You Might Also Like...
Interested in selling in Gentry Place?


