




$280,185
445 Grantham Court
Spartanburg, SC 29303
About This Property
This Property Has Been Sold
This property sold 4 years ago and is no longer available for purchase.
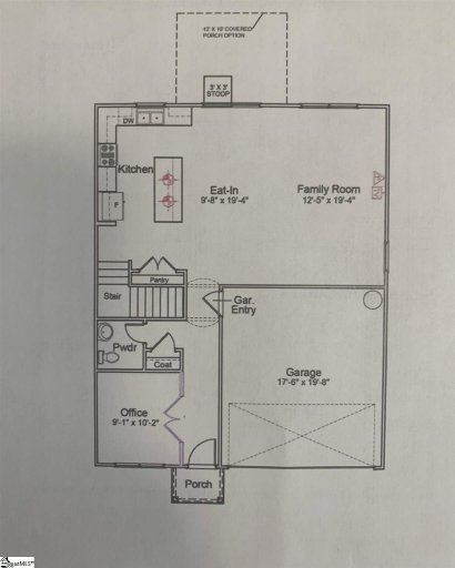
View active listings in Durham Farms →The Lancaster A four-bedroom and two-and-one-half bath home that features a formal office area, kitchen with granite countertops, stainless steel appliances, island, overlooking the eat-in area as well as the family room, and laundry room. Two car attached garage with garage door opener.
GVL MLS # 1444432
Quick Facts
Time on Site
5 years ago
Property Type
Residential
Year Built
2021
Lot Size
6,534 sqft
HOA Fees
$550/yr
Property Details
Schools
Features & Amenities
Features:
- Ceiling Fan(s)
- Ceiling Smooth
- Granite Counters
- Countertops-Solid Surface
Location & Map
Map View
Loading map...
Additional Information
Community
- Street Lights
Lot & Land
- 1/2 Acre or Less
Tax Information
Interior Details
- Carpet
- Vinyl
- Dishwasher
- Disposal
- Electric Oven
- Microwave-Convection
- Electric Water Heater
- 2nd Floor
- Laundry Room
- Ceiling Fan(s)
- Ceiling Smooth
- Granite Counters
- Countertops-Solid Surface
Parking & Garage
- Attached
- Paved
Exterior Features
- Composition
- Attached
- Paved
- Slab
- Vinyl Siding
H O A & Association
- Street Lights
Property Overview
- Two
- Craftsman
Utilities & Systems
- Electric
- Forced Air
- Sewer Available
- Water Available
Listing Agent Information
The information is being provided by Greater Greenville MLS. Information deemed reliable but not guaranteed. Information is provided for consumers' personal, non-commercial use, and may not be used for any purpose other than the identification of potential properties for purchase. Copyright 2025 Greater Greenville MLS. All Rights Reserved.
You Might Also Like...
Interested in selling in Durham Farms?

