

Gentry Place
1/2
$190k
Gentry Place
SOLD
$190k
$189,700
Sold: $193,700+2%
437 Ward Thomas Way Way
Spartanburg, SC 29301
2Beds
2Baths
1,040Sq Ft
2025Built
About This Property
This Property Has Been Sold
This property sold 11 months ago and is no longer available for purchase.
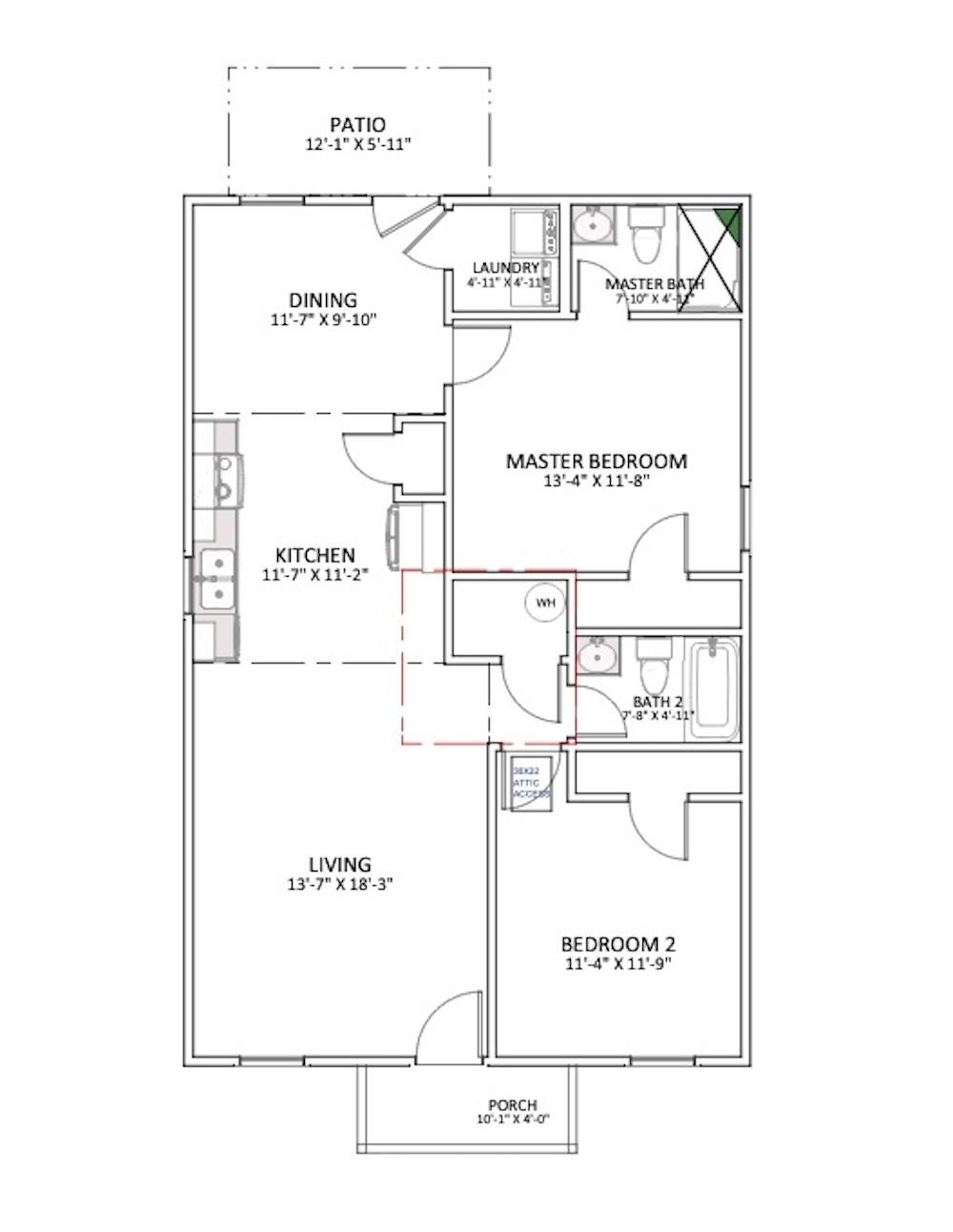
View active listings in Gentry Place →New Construction by local builder located in Spartanburg! The Elliott floor plan is a 2 Bedroom, 2 Bath, single story home. Standard features include Walk in Laundry, Luxury vinyl plank flooring in kitchen, dining and wet areas, Concrete back patio, and fully sodded yard.
Great opportunity at a great price! Must See!
SPN MLS # 319991
Quick Facts
Time on Site
1 year ago
Property Type
Residential
Year Built
2025
Lot Size
5,662 sqft
Price/Sq.Ft.
$182
Property Details
Bedrooms:
2
Bathrooms:
2
Living Area:
1,040 SqFt
Total Area:
1,040 SqFt
Sub-Type:
SingleFamilyResidence
Schools
Elementary:
Fairforest
Middle:
Fair Forest
High:
Dorman High
School assignments may change. Contact the school district to confirm.
Features & Amenities
Location & Map
Map View
Loading map...
Additional Information
Basement
Finished Sq Ft Below Grade
0
Security
Security Features
- Smoke Detector(s)
Community
Community Features
- Street Lights
Lot & Land
Lot Size ( Acres)
0.13
Primary Suite
Features
- Bath - Full
- Shower Only
- Owner on Main Level
Interior Details
Flooring
- Carpet
- Luxury Vinyl
Appliances
- Dishwasher
- Disposal
- Cooktop
- Electric Cooktop
- Electric Oven
- Self Cleaning Oven
- Microwave
Specialty Rooms
Main Fl Master Bedroom
Window Features
- Tilt-Out
Laundry Features
- 1st Floor
- Walk-In
- Washer Hookup
- Electric Dryer Hookup
Interior Features
- Ceiling Fan(s)
- Cable Available
- Laminate Counters
- Open Floorplan
- Pantry
New Construction
Model
Elliott
Builder
Enchanted Homes
Est. Completion
2025-04-01
Parking & Garage
Garage Spaces
0
Parking Features
- Driveway
Exterior Features
Roof
- Architectural
Storage
- Attic
- Garage
Driveway
Paved-Concrete
Exterior Features
- Aluminum/Vinyl Trim
Foundation Details
- Slab
Construction Materials
- Vinyl Siding
Patio & Porch Features
- Patio
- Porch
H O A & Association
Fee Includes
- Common Area
- Street Lights
Fee Frequency
Annually
Mandatory H O A
Yes
Association Fee
200
Property Overview
County
Spartanburg
Levels
- One
Subdivision
Gentry Place
Approximate Age
New/Never Lived In
School District
6 Sptbg Co
Architectural Style
- Ranch
Main Level Bedrooms
2
Main Level Bathrooms
2
Utilities & Systems
Sewer
- Public Sewer
Cooling
- Central Air
Heating
- Heat Pump
Cooling Fuel
Electricity
Heating Fuel
Electricity
Water Heater
Electric
Water Source
- Public
Water Company
SJWD
Garbage Pickup
Private
Electric Company
Duke
Listing Agent Information
Listing Courtesy
Joshua Allen of Cornerstone Real Estate Group
Request Showing From Palmetto Park Realty Team
Spartanburg: (864) 757-4000
You Might Also Like...
Interested in selling in Gentry Place?


