



$293,990
421 Florence Street
Spartanburg, SC 29303
About This Property
Proposed Construction Opportunity! Personalize this home by visiting our design center to pick colors and options. Price is base price before options are added.
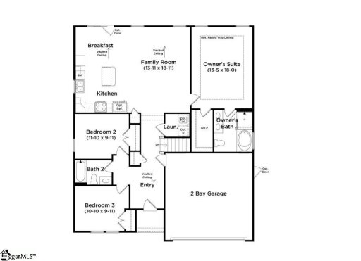
Welcome to Fox Hollow! The most convenient community in a private setting within 4 minutes of Fairforest Elementary and I-85. The Parker is main floor living at its best!
Entering your Craftsman style home from your covered front porch or two car garage you have two bedrooms and a full bath adjacent to the spacious foyer. Continuing into the living room, you will love how open and bright the room is with the vaulted ceilings and tall windows and there is the option to have a cozy gas fireplace. Customize your chefs kitchen with features such as cabinetry in your choice of color, Quartz or granite countertops, tiled backsplash, undercabinet lighting along with an oversized island, and stainless steel gas appliances.
GVL MLS # 1585777
Quick Facts
Time on Site
1 month ago
Property Type
Residential
Lot Size
6,969 sqft
Price/Sq.Ft.
$163
HOA Fees
$290/yr
Property Details
Schools
Features & Amenities
Features:
- High Ceilings
- Ceiling Smooth
- Granite Counters
- Open Floorplan
- Walk-In Closet(s)
- Split Floor Plan
- Countertops – Quartz
- Pantry
Location & Map
Map View
Loading map...
Additional Information
Community
- Street Lights
Lot & Land
- 1/2 Acre or Less
Tax Information
Interior Details
- Carpet
- Luxury Vinyl
- Dishwasher
- Disposal
- Free-Standing Gas Range
- Self Cleaning Oven
- Gas Oven
- Microwave
- Gas Water Heater
- 1st Floor
- Electric Dryer Hookup
- Laundry Room
- High Ceilings
- Ceiling Smooth
- Granite Counters
- Open Floorplan
- Walk-In Closet(s)
- Split Floor Plan
- Countertops – Quartz
- Pantry
Parking & Garage
- Attached
- Paved
- Garage Door Opener
Exterior Features
- Architectural
- Attached
- Paved
- Garage Door Opener
- Slab
- Patio
- Front Porch
- Screened
- Rear Porch
- Vinyl Siding
H O A & Association
- Street Lights
Property Overview
- Two
- Craftsman
Utilities & Systems
- Public Sewer
- Electric
- Natural Gas
- Cable Available
- Public
Listing Agent Information
The information is being provided by Greater Greenville MLS. Information deemed reliable but not guaranteed. Information is provided for consumers' personal, non-commercial use, and may not be used for any purpose other than the identification of potential properties for purchase. Copyright 2025 Greater Greenville MLS. All Rights Reserved.


