




$239,999
4110 Chessgrove Way
Spartanburg, SC 29307
About This Property
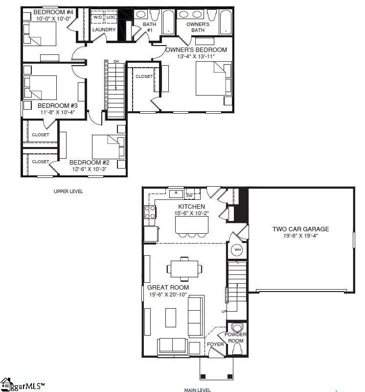
The Birch single-family home provides space and style. Enter through the 2-car garage or foyer and find a light-filled, airy floor plan. The great room flows into the dinette and kitchen area so you never miss a moment with friends or family around the island.
Upstairs, the generous space continues, with a broad stairway that leads to an open landing, 3 bedrooms with ample closet space and a full bath. The luxurious owner’s suite, with its walk-in closet and dual vanity bath, keeps you connected to the rest of the home while providing peaceful privacy. Discover all the benefits of The Birch.
Select from our professionally designed interior finishes with the help of our highly trained Sales Representative. You’ll love how easy it is to get the home of your dreams!
GVL MLS # 1580834
Quick Facts
Time on Site
1 month ago
Property Type
Residential
Lot Size
5,662 sqft
Price/Sq.Ft.
$143
HOA Fees
$413/yr
Property Details
Schools
Features & Amenities
Features:
- Ceiling Smooth
- Countertops-Solid Surface
- Open Floorplan
- Walk-In Closet(s)
Location & Map
Map View
Loading map...
Additional Information
Community
- Common Areas
- Street Lights
- Playground
- Sidewalks
- Other
- Dog Park
- Walking Trails
- Community Center
Lot & Land
- 1/2 Acre or Less
- Few Trees
Tax Information
Interior Details
- Carpet
- Ceramic Tile
- Other
- Luxury Vinyl
- Dishwasher
- Disposal
- Dryer
- Refrigerator
- Washer
- Free-Standing Electric Range
- Microwave
- Electric Water Heater
- 2nd Floor
- Walk-in
- Laundry Room
- Ceiling Smooth
- Countertops-Solid Surface
- Open Floorplan
- Walk-In Closet(s)
Parking & Garage
- Attached
- Paved
- Concrete
- Garage Door Opener
Exterior Features
- Architectural
- Composition
- Attached
- Paved
- Concrete
- Garage Door Opener
- Slab
- Patio
- Vinyl Siding
H O A & Association
- Street Lights
- Other/See Remarks
Property Overview
- Two
- Traditional
- Craftsman
Utilities & Systems
- Public Sewer
- Central Air
- Electric
- Damper Controlled
- Electric
- Damper Controlled
- Underground Utilities
- Cable Available
- Public
Listing Agent Information
The information is being provided by Greater Greenville MLS. Information deemed reliable but not guaranteed. Information is provided for consumers' personal, non-commercial use, and may not be used for any purpose other than the identification of potential properties for purchase. Copyright 2025 Greater Greenville MLS. All Rights Reserved.


