




$219,900
317 Seven Oaks Lane
Spartanburg, SC 29301
About This Property
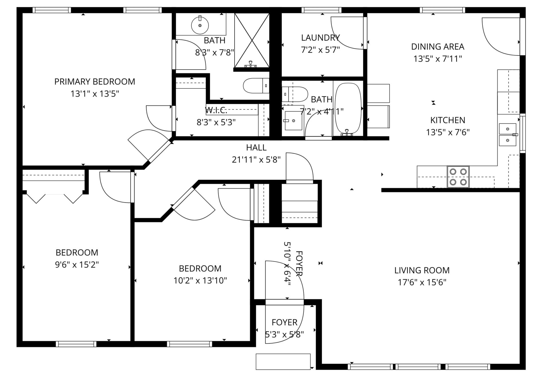
Enjoy single story living in this three bedroom, two bathroom Ranch, just minutes from Westgate Mall and I-26, making daily errands and commuting a breeze. The home sits on a spacious 0.27+/-acre lot with a welcoming front porch that feels perfect for morning coffee or a quiet moment at the end of the day.
As you step inside, you enter the spacious living room, where there’s plenty of room to arrange your favorite seating and create a cozy gathering space. The kitchen sits just off the living area with an open feel, including a dining area that works well for both weeknight meals and weekend brunch. All major appliances convey, including the stove, dishwasher, microwave, and refrigerator.
The laundry room sits just behind the kitchen, keeping household tasks tucked out of sight. Down the hall from the living area, you will find the two secondary bedrooms and a nicely finished hall bathroom with an updated sink vanity. The Primary Suite is tucked away at the end of the hall and features a large bedroom, plus an upgraded ensuite bathroom with a walk-in shower and walk-in closet.
SPN MLS # 333347
Quick Facts
Time on Site
1 month ago
Property Type
Residential
Year Built
2006
Lot Size
11,761 sqft
Price/Sq.Ft.
$165
Property Details
Schools
Features & Amenities
Features:
- Ceiling Fan(s)
- Ceilings-Some 9 Ft +
- Ceiling - Smooth
- Laminate Counters
Location & Map
Map View
Loading map...
Additional Information
Basement
Lot & Land
- Creek
- Sloped
- Some Trees
- Steep Slope
Primary Suite
- Bath - Full
- Owner on Main Level
- Shower Only
- Shower-Separate
- Walk-in Closet
Interior Details
- Laminate
- Dishwasher
- Microwave
- Electric Oven
- Electric Range
- Free-Standing Range
- Refrigerator
- Insulated Windows
- Tilt-Out
- 1st Floor
- Walk-In
- Ceiling Fan(s)
- Ceilings-Some 9 Ft +
- Ceiling - Smooth
- Laminate Counters
Parking & Garage
- Driveway
Exterior Features
- Composition
- Crawl Space
- Wood Siding
- Deck
- Porch
Property Overview
- One
- Ranch
- Traditional
Utilities & Systems
- Public Sewer
- Central Air
- Forced Air
- Public


