




$337,900
2041 Halton Oaks Drive
Spartanburg, SC 29303
About This Property
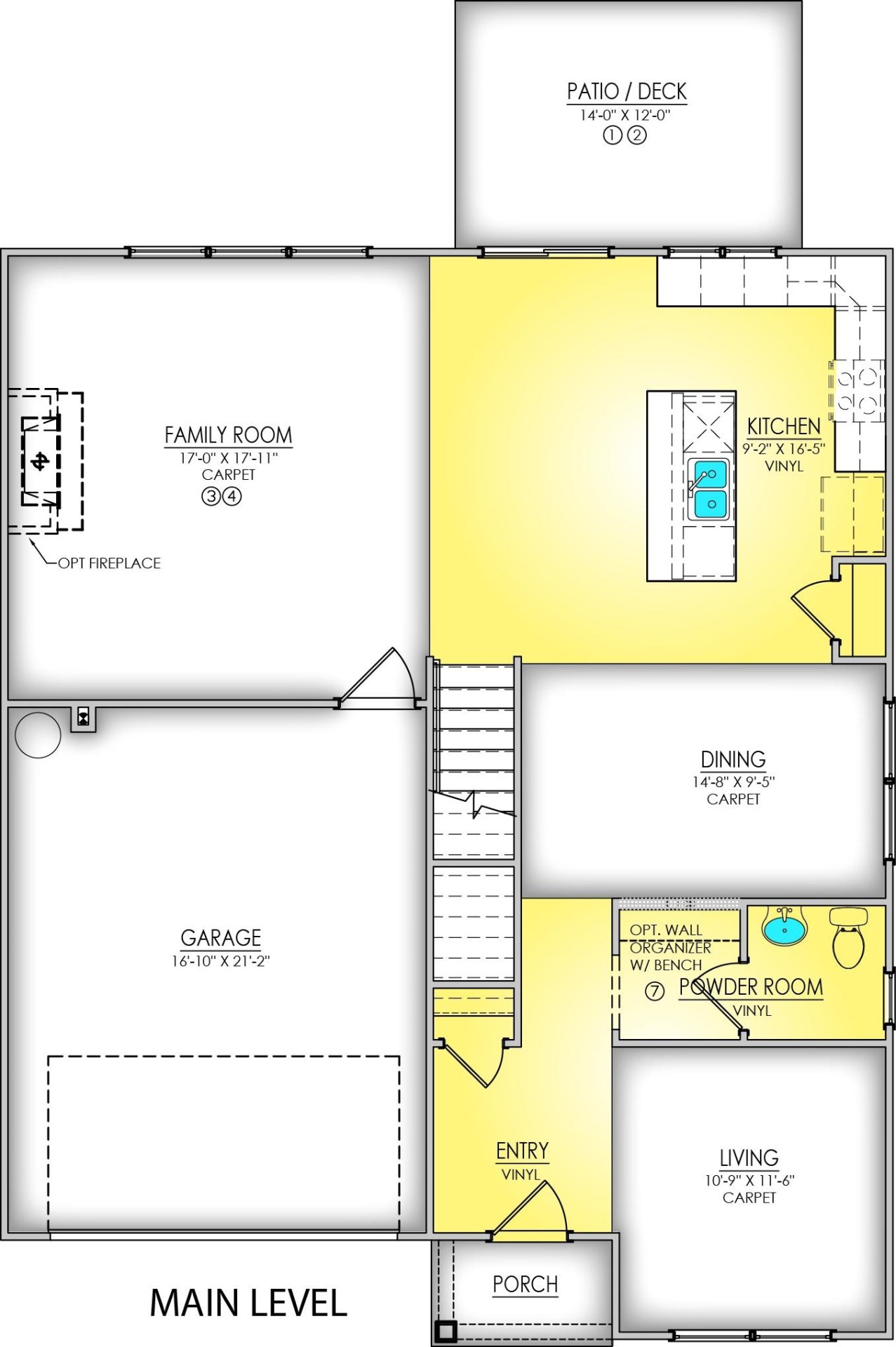
Move-in Ready Spacious 5-Bedroom, 3-Bath Home With Open-Concept & Loft Welcome to the Devonshire II — a move-in ready, open-concept home offering 2,574 sq ft of thoughtfully designed living space that blends style, comfort, and function. This single-family residence features a generous floor plan with bright natural light, quality finishes, and an efficient layout ideal for modern everyday living and entertaining. The main level showcases a welcoming open floor plan with a spacious family room, well-appointed kitchen, and a dedicated dining area — creating a seamless flow for gatherings and daily meals.
The kitchen is designed with room for a large island (optional upgrade available), ample cabinetry, and efficient workspaces to support both culinary creativity and casual living. Upstairs, the luxurious primary suite provides a private retreat with its ensuite bathroom and generous space designed for comfort and style. Three additional well-sized bedrooms and two bathrooms offer flexible living space for family, guests, or a home office.
A versatile loft area adds valuable space that can serve as a playroom, study area, hobby room, or secondary lounge. Additional features include a two-car attached garage, ample storage throughout, and optional covered or screened patio for additional outdoor living. Optional design upgrades such as a stone fireplace or elegant tile shower allow personalization for both style and comfort.
SPN MLS # 333803
Quick Facts
Time on Site
18 days ago
Property Type
Residential
Year Built
2025
Lot Size
6,534 sqft
Price/Sq.Ft.
$147
Property Details
Schools
Features & Amenities
Location & Map
Map View
Loading map...
Additional Information
Basement
Security
- Smoke Detector(s)
Community
- Pool
Lot & Land
- Level
Primary Suite
- Bath - Full
- Double Vanity
- Owner on 2nd level
- Shower-Separate
- Tub-Separate
- Walk-in Closet
Interior Details
- Carpet
- Luxury Vinyl
- Dishwasher
- Disposal
- Microwave
- Insulated Windows
- 1st Floor
- Ceiling Fan(s)
- Walk-In Closet(s)
New Construction
Parking & Garage
- Attached
- 2 Car Attached
- Garage
Exterior Features
- Architectural
- Aluminum/Vinyl Trim
- Slab
- Stone
- Vinyl Siding
- Patio
H O A & Association
- Pool
Property Overview
- Two
- Traditional
Utilities & Systems
- Public Sewer
- Central Air
- Forced Air
- Gas
- Tankless
- Public


