




$239,999
1310 Fairbairn Road
Spartanburg, SC 29303
About This Property
This Property Has Been Sold
This property sold 2 years ago and is no longer available for purchase.
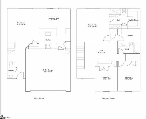
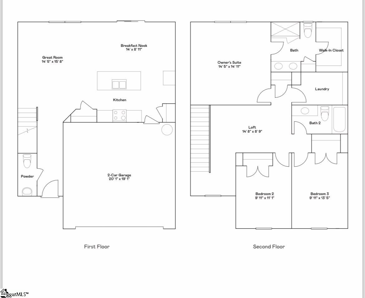
View active listings in Shoally Brook →This cozy and cute craftsman style plan features a spacious kitchen with a large island and quartz countertops, great for all those home cooked meals. The kitchen is open to the great room, which is great for entertaining or just a relaxing evening at home with the family. LVP flooring throughout the main floor, tile backsplash and stainless steel appliances complete the kitchen.
Upstairs you will find a lovely owners' suite with double sinks, a shower and a walk in closet. The laundry room is conveniently located upstairs with 2 additional bedrooms, full bath and a loft for additional entertaining space. Ask the agent for buyer incentives.
GVL MLS # 1517685
Quick Facts
Time on Site
2 years ago
Property Type
Residential
Year Built
2024
Lot Size
4,791 sqft
HOA Fees
$345/yr
Property Details
Schools
Features & Amenities
Features:
- Ceiling Smooth
- Countertops-Solid Surface
- Open Floorplan
- Countertops – Quartz
- Pantry
Location & Map
Map View
Loading map...
Additional Information
Community
- Common Areas
Lot & Land
- 1/2 Acre or Less
- Cul-De-Sac
Tax Information
Interior Details
- Carpet
- Luxury Vinyl
- Dishwasher
- Disposal
- Free-Standing Electric Range
- Microwave
- Electric Water Heater
- 2nd Floor
- Walk-in
- Electric Dryer Hookup
- Laundry Room
- Ceiling Smooth
- Countertops-Solid Surface
- Open Floorplan
- Countertops – Quartz
- Pantry
Parking & Garage
- Attached
- Concrete
Exterior Features
- Composition
- Attached
- Concrete
- Slab
- Vinyl Siding
H O A & Association
- By-Laws
- Restrictive Covenants
Property Overview
- Two
- Craftsman
Utilities & Systems
- Public Sewer
- Central Air
- Electric
- Electric
- Forced Air
- Public
Listing Agent Information
The information is being provided by Greater Greenville MLS. Information deemed reliable but not guaranteed. Information is provided for consumers' personal, non-commercial use, and may not be used for any purpose other than the identification of potential properties for purchase. Copyright 2025 Greater Greenville MLS. All Rights Reserved.
You Might Also Like...
Interested in selling in Shoally Brook?


